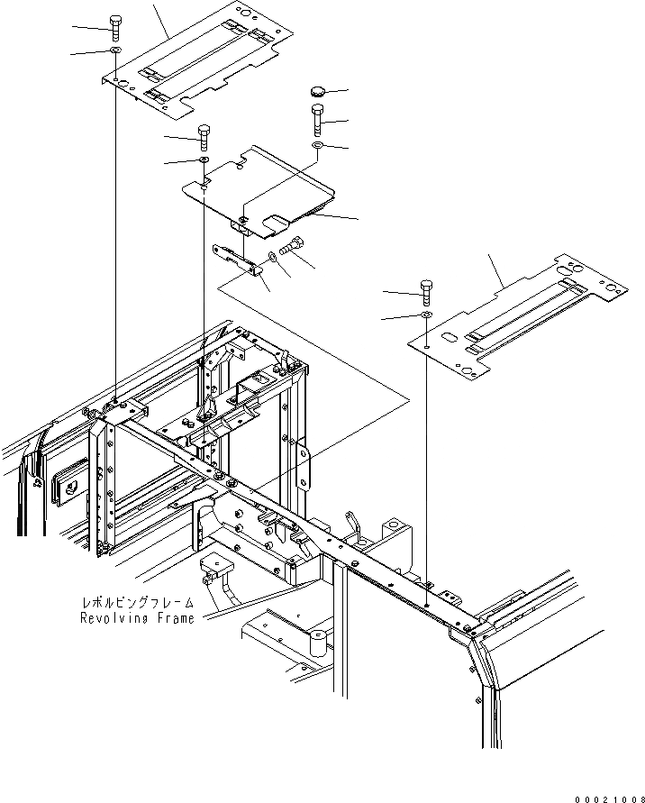
Запчасти Komatsu PC130-7 КРЫШКА(ВЕРХН.) ЧАСТИ КОРПУСА

Схема запчастей Komatsu PC130-7 - КРЫШКА(ВЕРХН.) ЧАСТИ КОРПУСА
1
2
3
4
5
6
7
8
9
10
11
12
13
14
15
FIT
1:1
100%

Артикул

Название

Примечание

Количество

1

203-54-73151

COVER

2

01010-81230

BOLT

3

01643-31232

WASHER

4

203-54-73121

COVER

5

01010-81230

BOLT

6

01643-31232

WASHER

7

203-54-77140

BRACKET

8

01010-81230

BOLT

9

01643-31232

WASHER

10

203-54-77130

COVER

11

01010-81255

BOLT

12

01643-31232

WASHER

13

09415-02512

CAP

14

124-54-26540

WASHER

15

01010-81230

BOLT

Выбрано товаров: 15