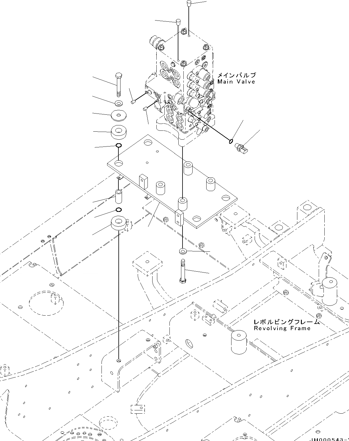
Запчасти Komatsu PC130-8 ОСНОВН. УПРАВЛЯЮЩ. КЛАПАН, С СЕРВИСНЫМ КЛАПАНОМ, -АКТУАТОР, КОРПУС КЛАПАНА И ДАТЧИК ОСНОВН. УПРАВЛЯЮЩ. КЛАПАН С СЕРВИСНЫМ КЛАПАНОМ, -АКТУАТОР

Схема запчастей Komatsu PC130-8 - ОСНОВН. УПРАВЛЯЮЩ. КЛАПАН, С СЕРВИСНЫМ КЛАПАНОМ, -АКТУАТОР, КОРПУС КЛАПАНА И ДАТЧИК ОСНОВН. УПРАВЛЯЮЩ. КЛАПАН С СЕРВИСНЫМ КЛАПАНОМ, -АКТУАТОР
12
11
11
4
4
9
8
8
10
10
7
6
5
3
2
1
13
FIT
1:1
100%

Артикул

Название

Примечание

Количество

1

203-62-12831

Bracket

2

01010-81685

Bolt

3

01643-31645

Washer

4

07049-01012

Plug

5

203-62-61572

Plate

6

01011-81600

Bolt

7

01643-31645

Washer

8

203-54-21110

Cushion

9

203-62-61581

Spacer

10

07000-13025

O-ring

11

07049-01012

Plug

12

7861-93-1812

Sensor, Pressure

13

07002-61823

O-ring

Выбрано товаров: 13