Запчасти Komatsu PC130-8 КАБИНА COVER КАБИНА COVER

Схема запчастей Komatsu PC130-8 - КАБИНА COVER КАБИНА COVER
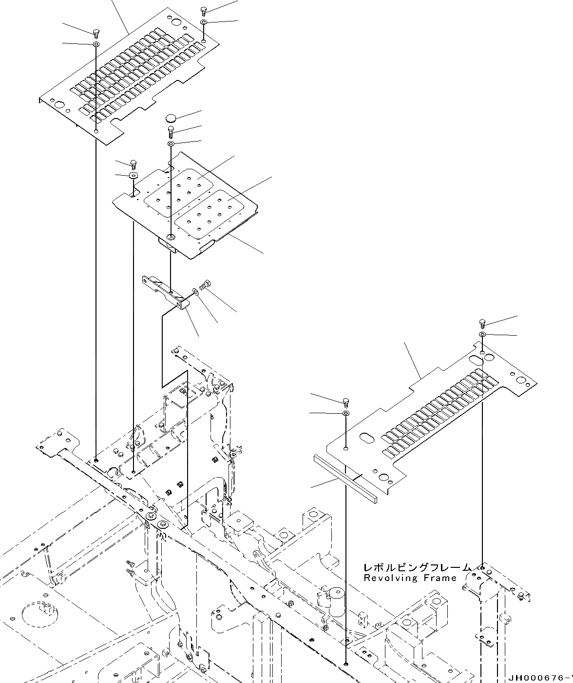
1
2
2
3
3
4
5
6
6
7
7
8
9
10
11
13
15
16
17
12
12
14
FIT
1:1
100%

Артикул

Название

Примечание

Количество

1

203-54-12311

Cover

2

01010-81230

Bolt

3

01643-31232

Washer

|4

203-54-11961

Cover

5

203-54-11981

Sheet

6

01010-81230

Bolt

7

01643-31232

Washer

8

203-54-77140

Bracket

9

01010-81230

Bolt

10

01643-31232

Washer

11

203-54-11990

Cover

12

208-00-76240

Plate

13

01010-81255

Bolt

14

01643-31232

Washer

15

09415-02512

Cap

16

124-54-26540

Washer

17

01010-81230

Bolt

Выбрано товаров: 17