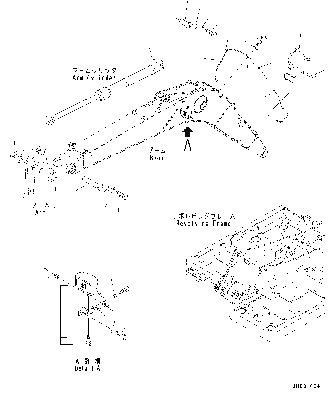
Запчасти Komatsu PC130-8 СТРЕЛА, -АКТУАТОР, ЛАМПА РАБОЧ. ОСВЕЩЕНИЯ СТРЕЛА, -АКТУАТОР

Схема запчастей Komatsu PC130-8 - СТРЕЛА, -АКТУАТОР, ЛАМПА РАБОЧ. ОСВЕЩЕНИЯ СТРЕЛА, -АКТУАТОР
12
13
15
14
2
3
4
5
7
8
1
6
17
20
16
22
18
21
19
9
11
9
9
10
5
9
23
FIT
1:1
100%

Артикул

Название

Примечание

Количество

1

21T-06-32810

Working Lamp Assembly, 24volt, 70watt

|1

421-06-23330

Bulb, 70watt

2

20Y-06-21551

Bracket

3

01010-81225

Bolt

4

01643-31232

Washer

5

203-06-11140

Wire

6

08193-21012

Clip

7

01010-81225

Bolt

8

01643-31232

Washer

9

04434-51012

Clip

10

01010-81020

Bolt

11

01643-31032

Washer

12

22B-70-22550

Pin

13

22B-70-22570

Plate

14

01010-81235

Bolt

15

01643-31232

Washer

16

20U-70-31340

Spacer, T=1.0mm

17

20U-70-31330

Spacer, T=0.5mm

18

203-70-42121

Pin

19

205-70-66580

Plate

20

01010-81230

Bolt

21

01643-31232

Washer

22

21Y-70-14830

Spacer, T=1.0mm

23

203-06-11730

Wiring Harness

Выбрано товаров: 24