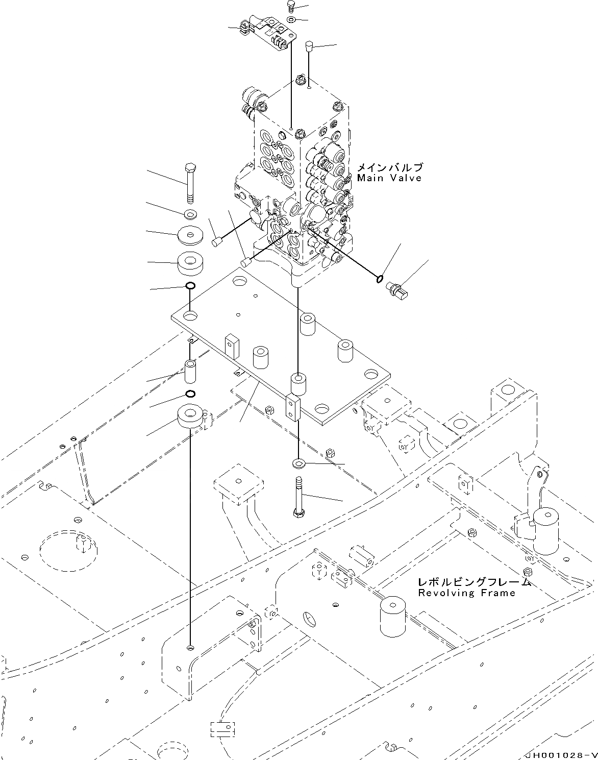
Запчасти Komatsu PC130-8 ОСНОВН. УПРАВЛЯЮЩ. КЛАПАН, -АКТУАТОР H ГИДРАВЛИКА

Схема запчастей Komatsu PC130-8 - ОСНОВН. УПРАВЛЯЮЩ. КЛАПАН, -АКТУАТОР H ГИДРАВЛИКА
15
11
9
8
8
10
10
7
6
5
3
2
1
16
4
4
12
13
14
FIT
1:1
100%

Артикул

Название

Примечание

Количество

1

203-62-12831

Bracket

2

01010-81685

Bolt

3

01643-31645

Washer

4

07049-01012

Plug, Cork

5

203-62-61572

Plate

6

01011-81600

Bolt

7

01643-31645

Washer

8

203-54-21110

Cushion

9

203-62-61581

Spacer

10

07000-13025

O-Ring

11

07049-01012

Plug, Cork

12

203-06-11490

Bracket

13

01010-81020

Bolt

14

01643-31032

Washer

15

7861-93-1811

Sensor, Pressure

16

07002-11823

O-Ring

Выбрано товаров: 16