Запчасти Komatsu PC130-8 КАБИНА, -АКТУАТОР, ОТВАЛ СПЕЦ-ЯIFICATION K OPERATORґS ОБСТАНОВКА И СИСТЕМА УПРАВЛЕНИЯ

Схема запчастей Komatsu PC130-8 - КАБИНА, -АКТУАТОР, ОТВАЛ СПЕЦ-ЯIFICATION K OPERATORґS ОБСТАНОВКА И СИСТЕМА УПРАВЛЕНИЯ
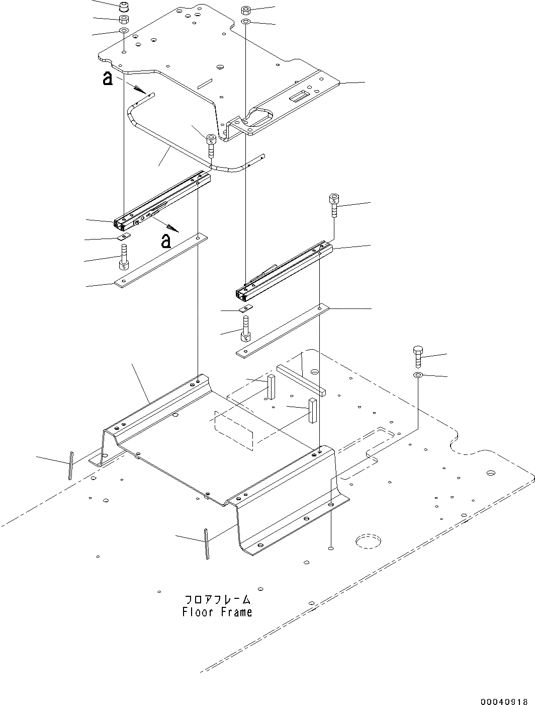
9
10
11
12
13
14
15
16
18
15
14
17
2
11
12
18
1
2
3
4
5
6
7
8
4
FIT
1:1
100%

Артикул

Название

Примечание

Количество

1

20Y-43-41920

Frame

2

208-43-71520

Seal

3

208-43-71530

Seal

4

208-43-71590

Seal

5

01010-81230

Bolt

6

01643-31232

Washer

7

208-43-K1040

Slide Rail Kit

8

01252-80825

Bolt

9

208-43-K1030

Slide Rail Kit

10

01252-80825

Bolt

11

01252-70845

Bolt, Hexagon Socket Head

12

20Y-43-41960

Plate

13

20Y-43-41911

Frame

14

195-43-43370

Nut

15

01643-70823

Washer

16

22B-54-16950

Cap

17

20Y-43-41930

Pipe

18

20Y-43-41940

Plate

Выбрано товаров: 18