Запчасти Komatsu PC130-8 КАБИНА РАМА M ЧАСТИ КОРПУСАS И КРЫШКИ

Схема запчастей Komatsu PC130-8 - КАБИНА РАМА M ЧАСТИ КОРПУСАS И КРЫШКИ
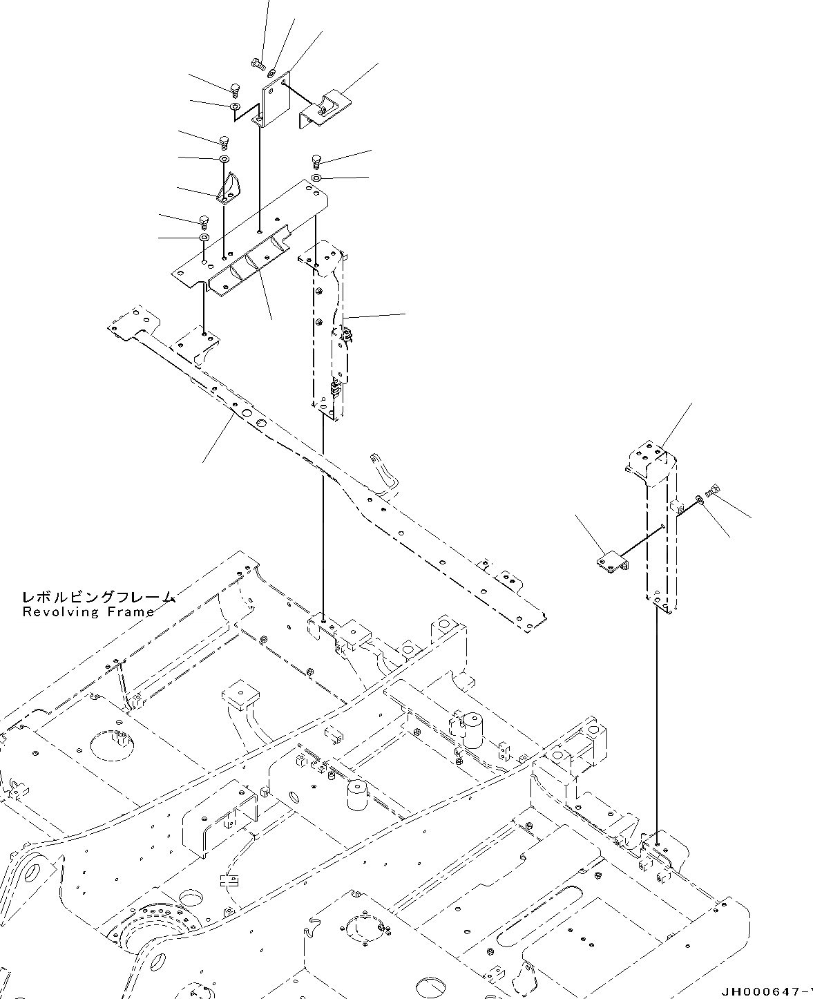
17
18
16
1
2
3
4
5
6
7
8
9
10
11
11
12
12
13
14
15
FIT
1:1
100%

Артикул

Название

Примечание

Количество

1

203-54-73540

Frame

2

203-54-11411

Bracket

3

01010-81230

Bolt

4

01643-31232

Washer

5

203-54-73961

Bracket

6

01010-81230

Bolt

7

01643-31232

Washer

8

203-54-11491

Bracket

9

01010-81230

Bolt

10

01643-31232

Washer

11

01010-81230

Bolt

12

01643-31232

Washer

13

203-54-12851

Bracket

14

01010-81230

Bolt

15

01643-31232

Washer

16

203-54-11421

Frame

17

203-54-11781

Frame

18

203-54-11931

Frame

Выбрано товаров: 18