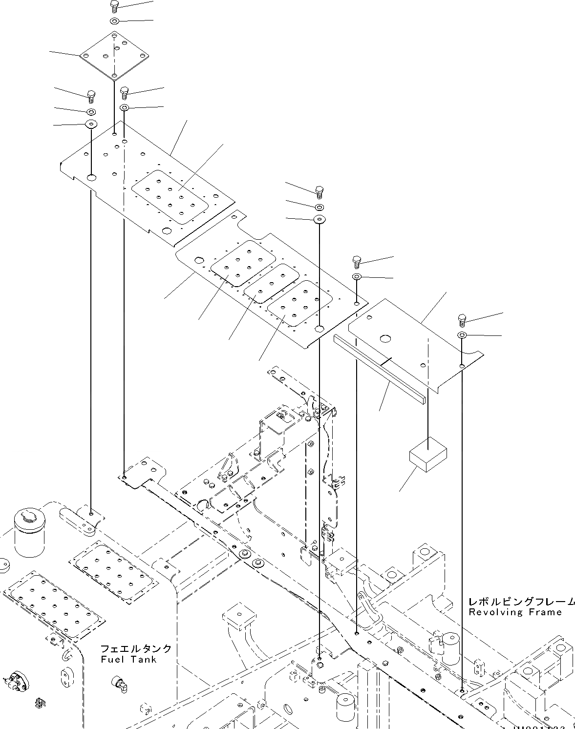
Запчасти Komatsu PC130-8 ПЕРЕДН. COVER, КРОМЕ ЯПОН. M ЧАСТИ КОРПУСАS И КРЫШКИ

Схема запчастей Komatsu PC130-8 - ПЕРЕДН. COVER, КРОМЕ ЯПОН. M ЧАСТИ КОРПУСАS И КРЫШКИ
3
4
22
23
5
6
7
8
11
12
13
14
15
16
18
17
19
20
2
10
9
9
21
1
FIT
1:1
100%

Артикул

Название

Примечание

Количество

1

203-54-11630

Cover

2

208-00-76240

Plate

3

01010-81230

Bolt

4

01643-31232

Washer

5

203-54-62670

Collar

6

01010-81230

Bolt

7

01643-31232

Washer

8

203-54-12351

Cover

9

207-00-76230

Plate

10

22U-00-28110

Plate

11

01010-81230

Bolt

12

01643-31232

Washer

13

203-54-62670

Collar

14

01010-81230

Bolt

15

01643-31232

Washer

|$15

203-54-12321

Cover

16

Cover

17

203-54-12340

Sheet

18

203-54-76920

Sheet

19

01010-81230

Bolt

20

01643-31232

Washer

21

203-54-12731

Plate

22

01010-81230

Bolt

23

01643-31232

Washer

Выбрано товаров: 24