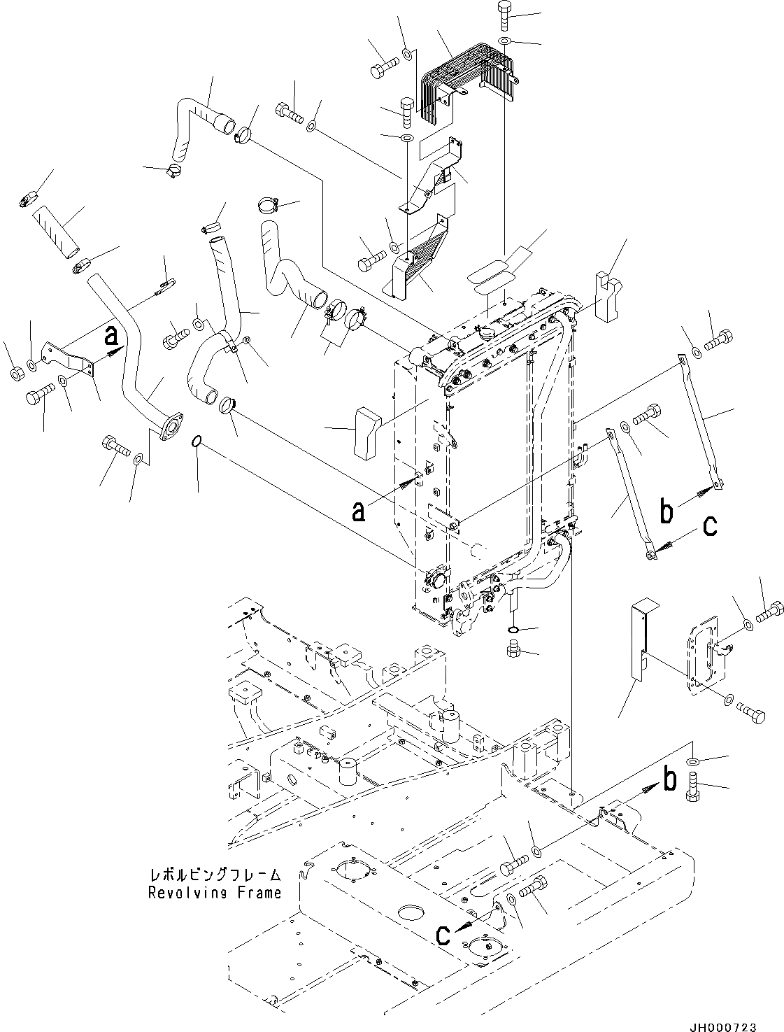
Запчасти Komatsu PC130-8 СИСТЕМА ОХЛАЖДЕНИЯ(№C-) СИСТЕМА ОХЛАЖДЕНИЯ

Схема запчастей Komatsu PC130-8 - СИСТЕМА ОХЛАЖДЕНИЯ(№C-) СИСТЕМА ОХЛАЖДЕНИЯ
48
29
30
28
30
31
32
33
34
35
36
39
1
2
3
4
5
6
7
8
9
10
11
12
13
14
15
47
16
17
18
19
20
21
22
23
24
29
5
20
35
36
37
38
46
45
44
25
27
26
43
42
27
26
25
41
40
40
41
FIT
1:1
100%

Артикул

Название

Примечание

Количество

1

203-03-12270

Hose

2

21T-62-69711

Clamp, Hose

3

17A-03-41540

Clamp

4

203-03-12830

Hose

5

17A-03-41540

Clamp

6

203-03-12341

Tube

7

07000-E2065

O-ring

8

01010-81035

Bolt

9

01643-31032

Washer

10

203-01-71321

Bracket

11

01010-81025

Bolt

12

01643-31032

Washer

13

07283-35150

Clip

14

01643-31032

Washer

15

01597-01009

Nut

16

203-03-12280

Hose

17

07289-00055

Clamp, Hose

18

07289-00045

Clamp

19

203-03-12331

Hose

20

07289-00055

Clamp, Hose

21

208-62-38370

Clip

22

01010-81035

Bolt

23

01643-31032

Washer

24

201-03-29160

Spacer

25

22U-03-22280

Stay

26

01010-81635

Bolt

27

21T-54-16150

Washer

28

203-03-12481

Guard

29

01010-81020

Bolt

30

01643-31032

Washer

31

203-03-12491

Guard

32

203-03-12511

Guard

33

01010-81020

Bolt

34

01643-31032

Washer

35

01010-81020

Bolt

36

01643-31032

Washer

37

07002-11423

O-ring

38

07040-11409

Plug

39

203-00-11930

Plate

40

01010-81635

Bolt

41

21T-54-16150

Washer

42

01010-81235

Bolt

43

175-54-34170

Washer

44

21K-03-72560

Bracket

45

01010-81025

Bolt

46

01643-31032

Washer

47

203-03-12291

Sheet

48

203-03-12311

Sheet

Выбрано товаров: 48