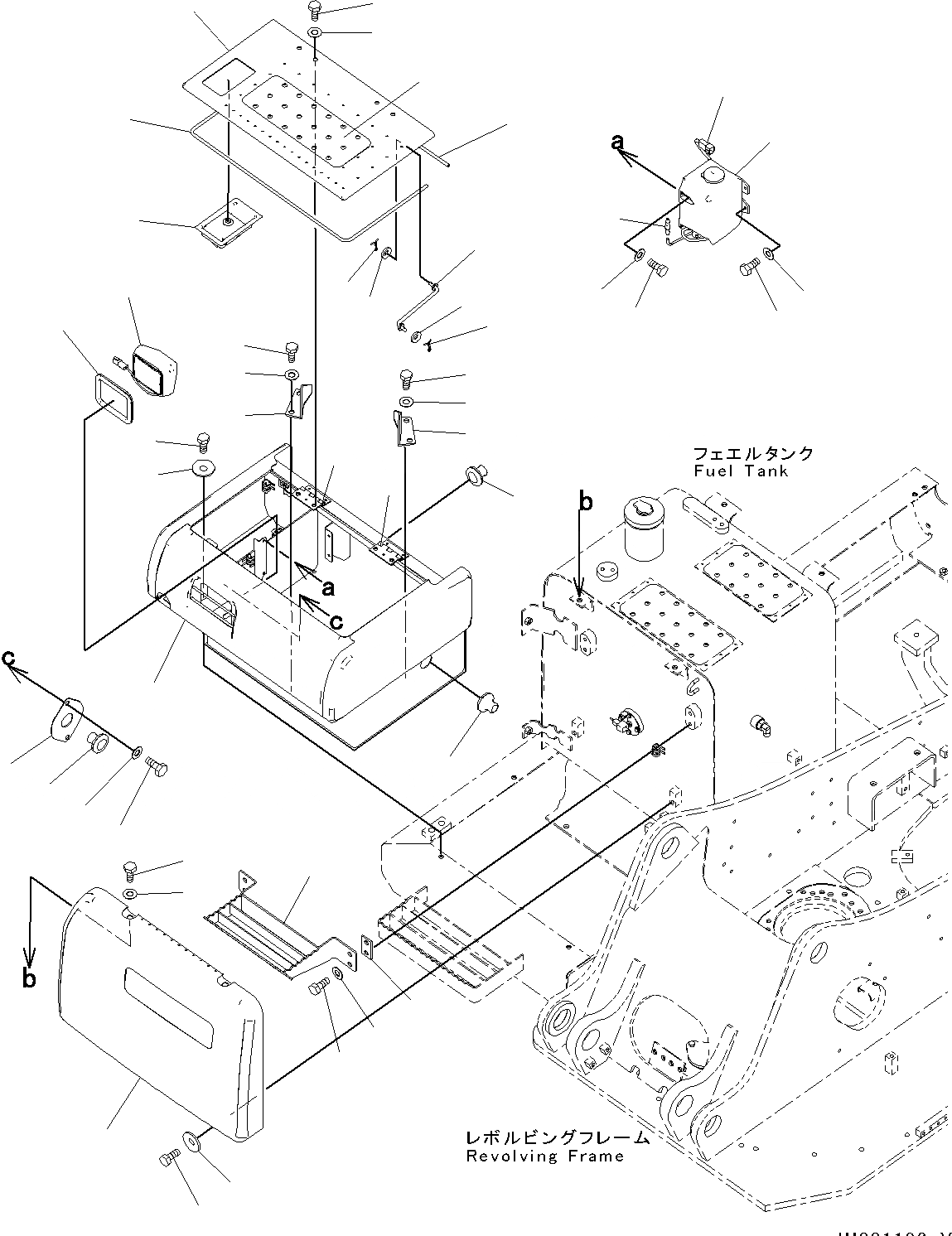
Запчасти Komatsu PC130-8КОРПУС, ДЛЯ KAL(№C-)КОРПУС, ДЛЯ KAL

Схема запчастей Komatsu PC130-8 -  КОРПУС, ДЛЯ KAL(№C-)  КОРПУС, ДЛЯ KAL
32
33
34
35
34
35
28
30
31
29
24
25
38
26
27
21
19
15
16
16
17
17
18
23
22
20
9
8
7
4
3
5
6
10
11
11
12
12
14
14
13
36
39
37
2
2
1
FIT
1:1
100%

Артикул

Название

Примечание

Количество

1

203-54-13240

Case

2

203-54-12291

Hinge,Welded

3

203-54-12131

Cover

4

20Y-54-74172

Lock

5

01010-81020

Bolt

6

01643-31032

Washer

7

203-54-67760

Seal

8

203-54-12710

Seal

9

203-54-12720

Seal

10

203-54-56630

Rod

11

01643-30623

Washer

12

04050-11612

Pin, Cotter

13

11Y-06-11372

Light

13

421-06-23330

Bulb, 24volt, 70watt

14

08037-12536

Grommet

15

21T-06-11350

Tank Assembly

16

01010-80616

Bolt

17

01643-30623

Washer

18

203-06-61132

Wire Harness

19

195-979-8590

Valve

20

20Y-00-42150

Plate

21

203-54-12270

Cover

22

01010-81230

Bolt

23

124-54-26540

Washer

24

01010-81230

Bolt

25

01643-31232

Washer

26

01010-81225

Bolt

27

124-54-26540

Washer

28

203-54-12281

Step

29

203-54-12861

Plate

30

01010-81230

Bolt

31

01643-31232

Washer

32

20Y-54-61670

Bracket

33

20Y-54-61680

Bracket

34

01010-81230

Bolt

35

01643-31232

Washer

36

203-54-13260

Plate

37

01010-81220

Bolt

38

01643-31232

Washer

39

08037-12536

Grommet

Выбрано товаров: 40