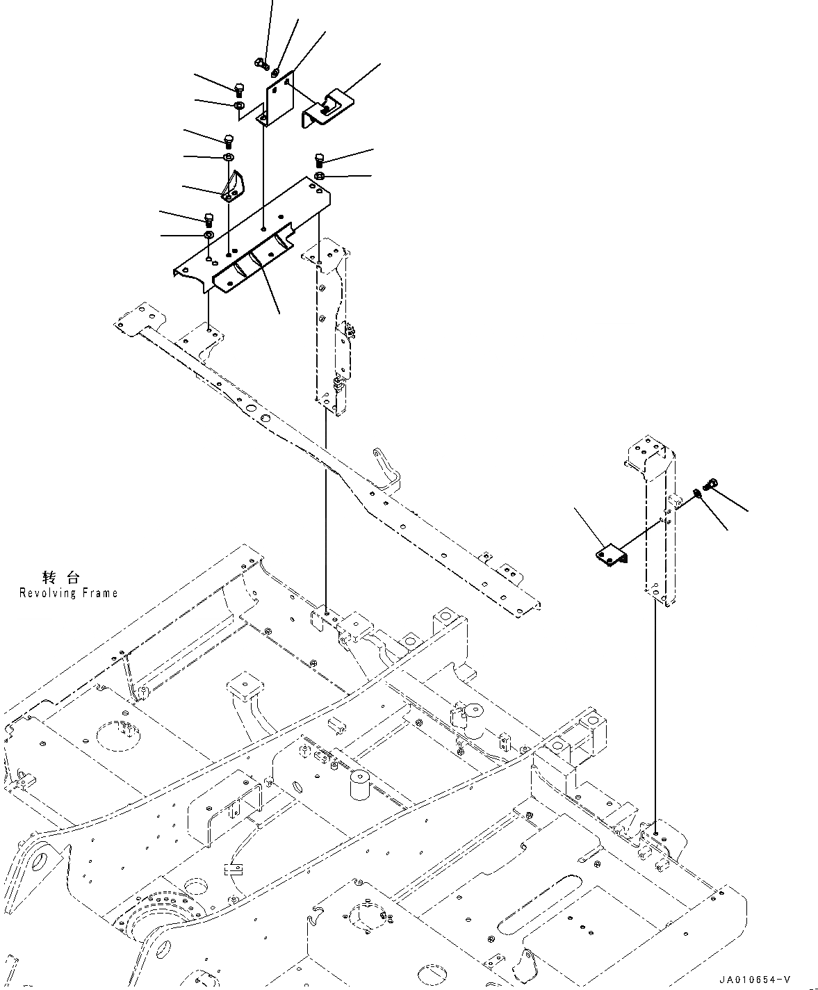
Запчасти Komatsu PC130-8M0 КАБИНА РАМА (КОРПУС) M [ЧАСТИ КОРПУСАS И КРЫШКИ]

Схема запчастей Komatsu PC130-8M0 - КАБИНА РАМА (КОРПУС) M [ЧАСТИ КОРПУСАS И КРЫШКИ]
2
3
4
5
6
7
8
9
10
11
11
12
12
13
14
15
1
FIT
1:1
100%

Артикул

Название

Примечание

Количество

1

203-54-17210

FRAME

2

203-54-11411

BRACKET

3

01010-81230

BOLT

4

01643-31232

WASHER

5

203-54-73961

BRACKET

6

01010-81230

BOLT

7

01643-31232

WASHER

8

203-54-11491

BRACKET

9

01010-81230

BOLT

10

01643-31232

WASHER

11

01010-81230

BOLT

12

01643-31232

WASHER

13

203-54-12851

BRACKET

14

01010-81230

BOLT

15

01643-31232

WASHER

Выбрано товаров: 15