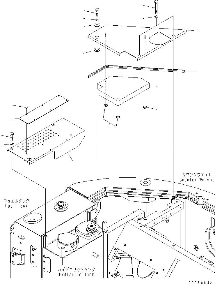
Запчасти Komatsu PC138US-8 КРЫШКАВЕРХН.(№-) ЧАСТИ КОРПУСА

Схема запчастей Komatsu PC138US-8 - КРЫШКАВЕРХН.(№-) ЧАСТИ КОРПУСА
1
2
3
4
4
5
6
7
8
9
10
11
12
13
14
15
FIT
1:1
100%

Артикул

Название

Примечание

Количество

|$1

22B-54-21401

COVER ASS'Y

1

COVER

2

22B-54-21641

SEAL

3

22B-54-21691

SHEET (BONDED)

4

124-A62-1920

CAP

5

20Y-54-19920

PLATE

6

22B-54-13810

COLLAR

7

01010-71230

BOLT

8

01643-11232

WASHER

9

01010-71270

BOLT

10

01643-11232

WASHER

|$16

22B-54-21700

COVER ASS'Y

11

COVER

12

22B-54-21910

SHEET

13

20T-54-74510

CAP

14

01010-71225

BOLT

15

01643-11232

WASHER

Выбрано товаров: 17