Запчасти Komatsu PC138US-8 VEHICLE ЭЛЕКТР. (РЕЛЕ) (ДЛЯ ЕС СТУПЕНИ) (№8-) E ЭЛЕКТРИКА

Схема запчастей Komatsu PC138US-8 - VEHICLE ЭЛЕКТР. (РЕЛЕ) (ДЛЯ ЕС СТУПЕНИ) (№8-) E ЭЛЕКТРИКА
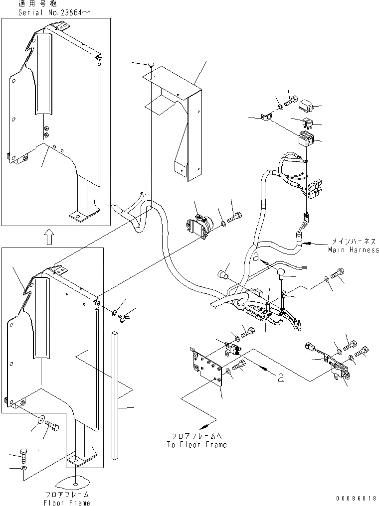
1
1
2
3
4
5
6
7
8
9
10
11
12
13
14
15
16
17
18
19
20
21
22
23
24
25
26
27
28
29
30
31
32
32
33
34
35
36
36
37
FIT
1:1
100%

Артикул

Название

Примечание

Количество

1

22B-06-28150

BRACKET

|$7

22B-06-21120

BRACKET

2

01010-81225

BOLT

3

01643-31232

WASHER

4

01010-81225

BOLT

5

175-54-34170

WASHER

6

22B-06-21180

SHEET

7

20T-54-74510

CAP

8

419-43-17760

WASHER

9

01434-00616

BOLT, WING

10

08088-30000

SWITCH

11

01010-80825

BOLT

12

01643-30823

WASHER

13

22B-06-21551

BRACKET

14

01010-81020

BOLT

15

01643-31032

WASHER

16

600-815-8941

RELAY

17

01010-80816

BOLT

18

01643-30823

WASHER

19

04434-50608

CLIP

20

01010-80816

BOLT

21

01643-30823

WASHER

22

600-815-2170

SWITCH

23

01010-80616

BOLT

24

01643-30623

WASHER

25

08038-00519

CAP

26

08038-02027

CAP

27

08038-04030

CAP

28

08211-01020

CLIP

29

04434-51910

CLIP

30

01010-81020

BOLT

31

01643-31032

WASHER

32

421-06-22880

HOLDER

33

421-06-22910

BRACKET

34

01010-80816

BOLT

35

01643-30823

WASHER

36

421-06-22830

FUSE, 120A

37

22B-54-21850

SHEET

Выбрано товаров: 38