Запчасти Komatsu PC138US-8 ОСНОВН. КОНСТРУКЦИЯ, ПОЛ, КОНТРОЛЬ ХОДА (№-) ОСНОВН. КОНСТРУКЦИЯ, PROVISION ДЛЯ РЕГУЛИР. 2-СЕКЦИОНН. СТРЕЛА, С -ДОПОЛН. АКТУАТОР ТРУБЫ, ДЛЯ СТРАН ЕС

Схема запчастей Komatsu PC138US-8 - ОСНОВН. КОНСТРУКЦИЯ, ПОЛ, КОНТРОЛЬ ХОДА (№-) ОСНОВН. КОНСТРУКЦИЯ, PROVISION ДЛЯ РЕГУЛИР. 2-СЕКЦИОНН. СТРЕЛА, С -ДОПОЛН. АКТУАТОР ТРУБЫ, ДЛЯ СТРАН ЕС
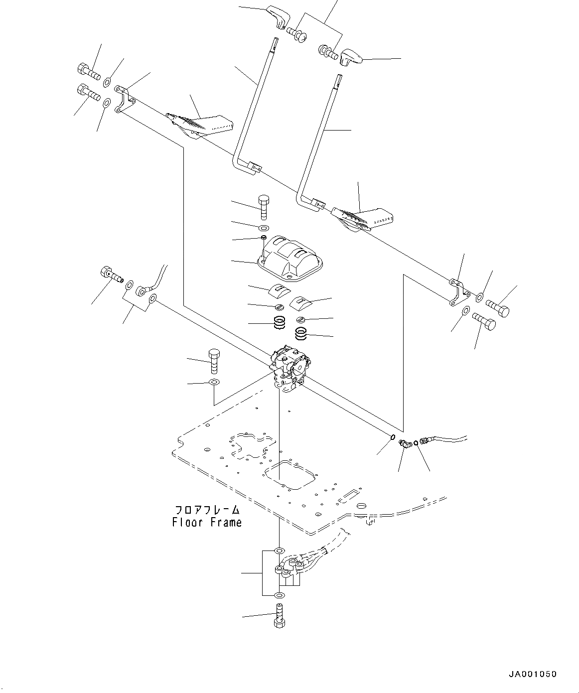
17
20
21
22
1
2
3
4
5
6
7
8
9
10
11
12
13
14
15
16
17
18
19
23
24
25
14
13
12
11
10
26
27
9
8
7
FIT
1:1
100%

Артикул

Название

Примечание

Количество

1

01010-81020

Bolt

2

01643-31032

Washer

3

20Y-43-41361

Collar

4

20Y-43-41121

Cover

5

01010-81020

Bolt

6

01643-31032

Washer

7

203-43-51620

Spring

7

22U-43-21350

Cover Assembly

8

Cover

9

22U-43-21360

Seal

10

20Y-43-41111

Lever

11

01010-D1045

Bolt

12

01643-71032

Washer

13

01010-81030

Bolt

14

01643-31032

Washer

15

22U-43-21111

Pedal,L.H.

16

22U-43-21121

Pedal,R.H.

17

21W-43-41441

Lever

18

20Y-43-21231

Knob,L.H.

19

20Y-43-21241

Knob,R.H.

20

01023-20416

Screw

21

20Y-62-18910

Plug

22

07000-12018

O-ring

23

02782-10210

Elbow

24

07002-11423

O-ring

25

02896-11008

O-ring

26

20Y-62-18890

Bolt, Joint

27

07000-12015

O-ring

Выбрано товаров: 28