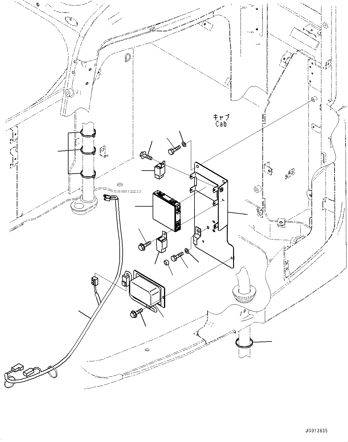
Запчасти Komatsu PC138USLC-8 КАБИНА, SUB ПЛАСТИНА И РЕЛЕ (№-) КАБИНА, КАБИНА ROPS, ДВЕРЬ РАМА, С VOLT POWER ПОДАЮЩ.

Схема запчастей Komatsu PC138USLC-8 - КАБИНА, SUB ПЛАСТИНА И РЕЛЕ (№-) КАБИНА, КАБИНА ROPS, ДВЕРЬ РАМА, С VOLT POWER ПОДАЮЩ.
1
2
3
4
5
6
7
7
6
9
8
10
11
11
2
3
FIT
1:1
100%

Артикул

Название

Примечание

Количество

1

22B-06-21410

Bracket

2

01010-80816

Bolt

3

01643-30823

Washer

4

22B-06-21920

Cap

5

22B-979-2771

Controller

6

421-07-31270

Relay

7

01435-00610

Bolt

8

22U-06-22251

Converter

9

01435-00610

Bolt

10

22B-06-21481

Wiring Harness

11

08034-20536

Band

Выбрано товаров: 11