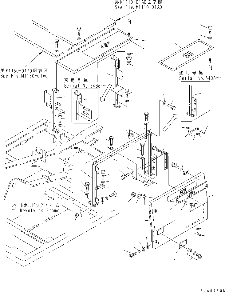
Запчасти Komatsu PC150-5 ЛЕВ. COVER ЧАСТИ КОРПУСА

Схема запчастей Komatsu PC150-5 - ЛЕВ. COVER ЧАСТИ КОРПУСА
1
1
2
3
4
5
6
7
8
9
10
11
11
12
13
14
15
16
17
18
19
20
21
22
23
24
25
26
27
28
29
30
30
30
31
31
31
32
33
34
35
36
37
38
39
40
41
42
43
44
45
46
47
48
49
49
50
50
51
51
52
52
53
53
FIT
1:1
100%

Артикул

Название

Примечание

Количество

1

21K-54-33212

BRACKET

|1

21K-54-33211

BRACKET

2

01010-81030

BOLT

|2

01010-51030

BOLT

3

01643-31032

WASHER

4

01011-81030

BOLT

|4

01011-51030

BOLT

5

01643-31032

WASHER

6

01010-81025

BOLT

|6

01010-51025

BOLT

7

01643-31032

WASHER

8

21K-54-33411

BRACKET

9

01010-81025

BOLT

|9

01010-51025

BOLT

10

01643-31032

WASHER

11

21K-54-33252

BRACKET

|11

21K-54-33251

BRACKET

12

01010-81030

BOLT

|12

01010-51030

BOLT

13

01643-31032

WASHER

14

21K-54-33261

COVER

15

01010-81025

BOLT

|15

01010-51025

BOLT

16

01643-31032

WASHER

|17

21K-54-33371

COVER ASS'Y

17

COVER

18

421-54-11372

LOCK ASS'Y (WELDED)

19

421-54-11381

LOCK

20

21K-54-33232

SHEET

21

203-54-52411

HINGE

22

01010-81225

BOLT

|22

01010-51225

BOLT

23

01643-31232

WASHER

24

01010-81230

BOLT

|24

01010-51230

BOLT

25

01643-31232

WASHER

26

203-54-52621

PLATE

|26

203-54-52620

PLATE

27

01010-81025

BOLT

|27

01010-51025

BOLT

28

01643-31032

WASHER

29

21K-54-33610

BAR

30

04050-13018

PIN,COTTER

31

01642-21016

WASHER

32

566-54-13410

STRIKER

33

203-54-56790

PLATE

34

01225-40820

SCREW

35

566-54-13570

WASHER

36

01580-10806

NUT

37

566-54-14420

STOPPER

38

203-54-52610

PLATE

39

01225-40820

SCREW

40

566-54-13570

WASHER

41

203-54-56810

BRACKET

42

01010-81025

BOLT

|42

01010-51025

BOLT

43

01643-31032

WASHER

44

203-54-56820

CLAMP

45

01010-81016

BOLT

|45

01010-51016

BOLT

46

01643-31032

WASHER

47

21K-54-33710

NET,(FOR DIRT PROTECTION)

48

21K-54-33720

NET,(FOR DIRT PROTECTION)

49

01010-80825

BOLT,(FOR DIRT PROTECTION)

|49

01010-50825

BOLT,(FOR DIRT PROTECTION)

50

01643-30823

WASHER,(FOR DIRT PROTECTION)

51

203-54-56970

WASHER,(FOR DIRT PROTECTION)

52

01580-10806

NUT,(FOR DIRT PROTECTION)

53

01643-30823

WASHER,(FOR DIRT PROTECTION)

Выбрано товаров: 69