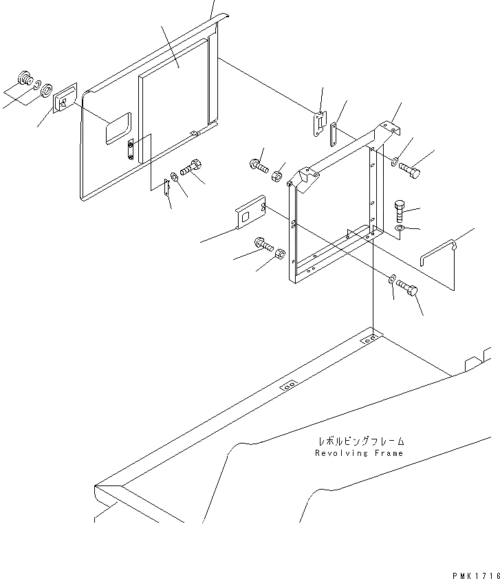
Запчасти Komatsu PC150LGP-6K ДВЕРЬ ПРАВ. ЧАСТИ КОРПУСА

Схема запчастей Komatsu PC150LGP-6K - ДВЕРЬ ПРАВ. ЧАСТИ КОРПУСА
1
2
3
4
5
6
7
8
9
10
11
12
13
14
15
16
17
17
18
18
19
20
FIT
1:1
100%

Артикул

Название

Примечание

Количество

1

203-54-62333

COVER,R.H.

2

421-54-11372

LOCK ASS'Y,R.H. (WELDED)

3

421-54-11381

LOCK

4

203-54-62180

HINGE (WELDED)

5

203-54-62362

SHEET

6

203-54-62190

PLATE

7

01010-81235

BOLT

8

01643-31232

WASHER

9

203-54-63582

FRAME

10

20Y-54-29232

BAR

11

203-54-63130

PLATE

12

01010-81220

BOLT

13

01643-31232

WASHER

14

203-54-63750

BRACKET

15

01010-80616

BOLT

16

01643-30623

WASHER

17

203-54-63830

STOPPER

18

01580-11008

NUT

19

01010-81230

BOLT

20

01643-31232

WASHER

Выбрано товаров: 20