Запчасти Komatsu PC160-6K ЛЕВ. ДВЕРЬ (КАБИНА)(№K-) ЧАСТИ КОРПУСА

Схема запчастей Komatsu PC160-6K - ЛЕВ. ДВЕРЬ (КАБИНА)(№K-) ЧАСТИ КОРПУСА
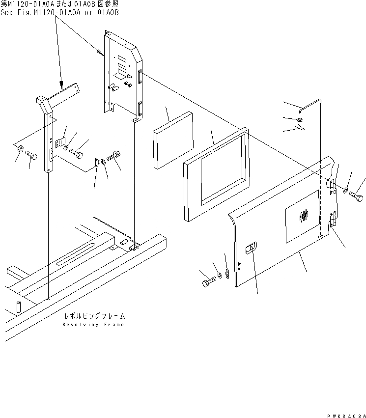
1
2
2
3
4
5
6
7
8
9
10
11
12
13
14
15
16
17
18
19
20
20
FIT
1:1
100%

Артикул

Название

Примечание

Количество

1

21P-54-K5032

DOOR

|1

21P-54-K5031

DOOR,(L.H.)

2

21P-54-K5450

HINGE (WELDED)

|2

20Y-54-K7450

HINGE (WELDED)

3

198-54-41982

LOCK ASS'Y (WELDED)

4

20E-54-K5362

SHEET

5

20E-54-K5370

SHEET

6

01010-81235

BOLT

7

01642-21216

WASHER

|7

01643-31232

WASHER

8

20Y-54-11611

STOPPER

9

01580-11008

NUT

10

20E-54-K5340

PLATE

11

01010-81220

BOLT

12

01643-31232

WASHER

13

20E-54-K5620

BAR

14

01641-21016

WASHER

15

04050-13018

PIN

16

205-54-51970

DOVE TAIL

17

205-54-53550

DOVE TAIL

18

01010-80616

BOLT

19

01010-80612

BOLT

20

01643-30623

WASHER

Выбрано товаров: 23