Запчасти Komatsu PC160-6K КРЫШКА(КАБИНА) (ВЕРХН.)(№K-K999) ЧАСТИ КОРПУСА

Схема запчастей Komatsu PC160-6K - КРЫШКА(КАБИНА) (ВЕРХН.)(№K-K999) ЧАСТИ КОРПУСА
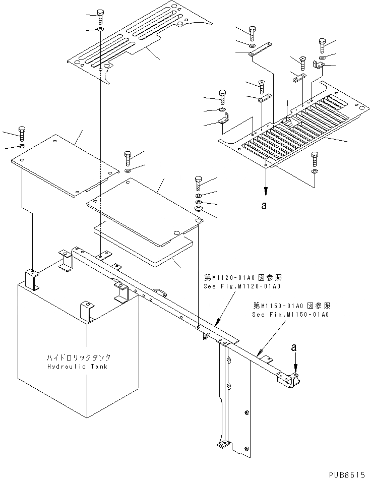
1
2
3
4
5
6
7
8
9
10
11
12
13
13A
14
14
15
15
15
16
16
16
17
17
18
19
20
21
22
FIT
1:1
100%

Артикул

Название

Примечание

Количество

|1

21P-54-K4471

COVER ASS'Y

1

21P-54-K3142

COVER

|1

21P-54-K4550

SHEET

2

21P-54-K4441

SHEET

3

01010-51230

BOLT

4

124-54-26540

WASHER

5

01010-51230

BOLT

6

01643-31232

WASHER

7

20Y-54-19930

COLLAR

8

20Y-54-19920

PLATE

9

20Y-54-K8681

COVER

|10

21P-54-K4610

COVER ASS'Y

10

21P-54-K4590

COVER

11

20Y-54-27531

LOCK

|11

20Y-54-27540

LOCK ASS'Y

12

20Y-54-27502

LOCK ASS'Y

13

21P-54-K4810

BRACKET

|13

20Y-54-32180

BRACKET

13A

21P-54-K4820

BRACKET

|13A

20Y-54-32180

BRACKET

14

205-54-68440

PLATE

15

01010-51025

BOLT

16

01643-31032

WASHER

17

01224-40616

SCREW

18

21P-54-K3150

COVER

19

01010-51230

BOLT

20

124-54-26540

WASHER

21

01010-51230

BOLT

22

01643-31232

WASHER

Выбрано товаров: 0