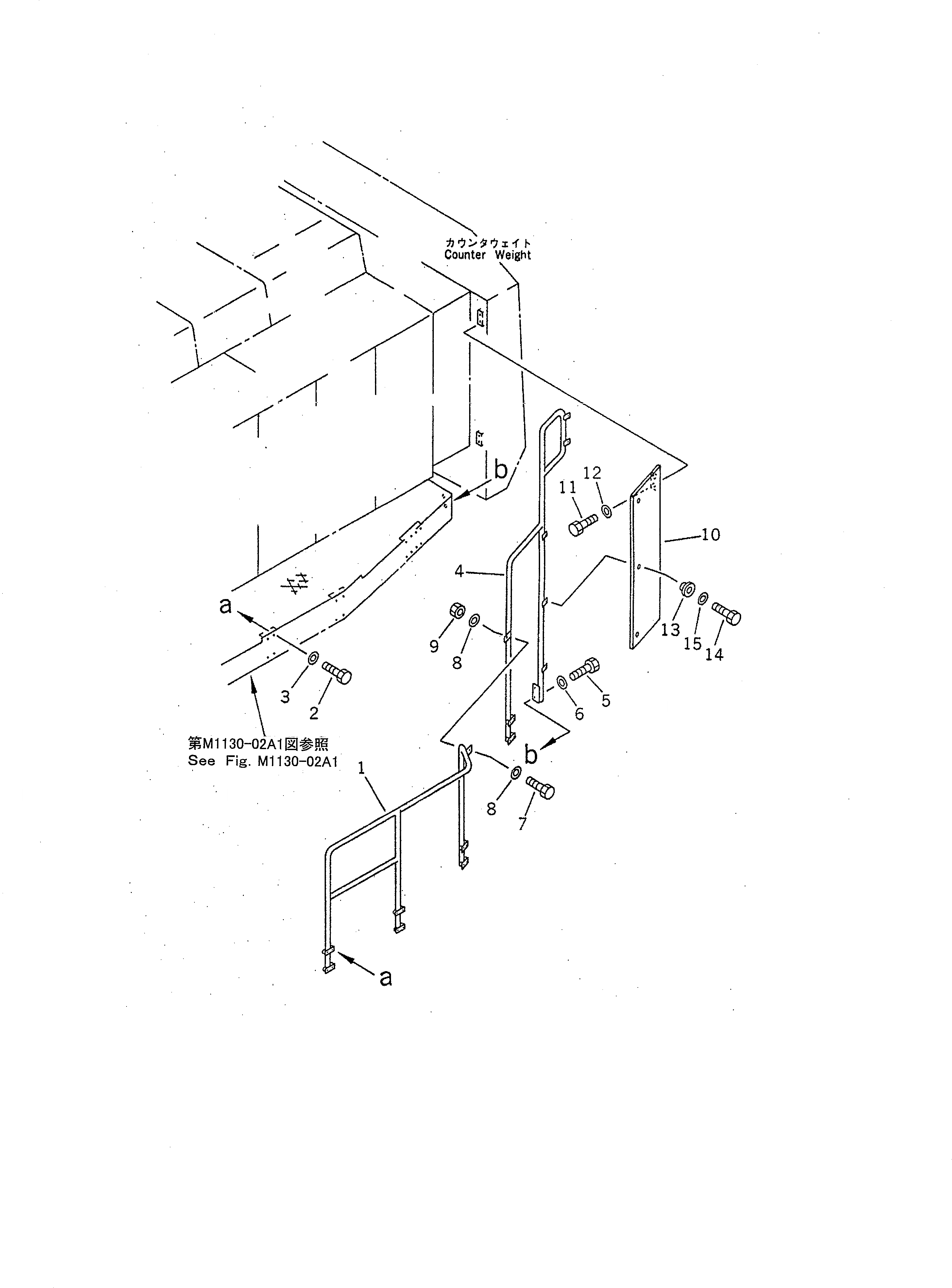
Запчасти Komatsu PC1600-1-A ПОРУЧНИ(ЗАДН. ) (ДЛЯ OSAKA BAY)(№-) ЧАСТИ КОРПУСА

Схема запчастей Komatsu PC1600-1-A - ПОРУЧНИ(ЗАДН. ) (ДЛЯ OSAKA BAY)(№-) ЧАСТИ КОРПУСА
FIT
1:1
100%

Артикул

Название

Примечание

Количество

G-1

21T-919-X310

FRAME GROUP

1

21T-54-77490

HAND RAIL

2

01010-51230

BOLT

3

175-54-34170

WASHER

4

21T-54-77510

LADDER

5

01010-51230

BOLT

6

01643-31232

WASHER

7

01010-51230

BOLT

8

175-54-34170

WASHER

9

01580-11210

NUT

10

21T-54-77540

HAND RAIL

11

01010-51230

BOLT

12

175-54-34170

WASHER

13

205-54-76411

COLLAR

14

01010-51255

BOLT

15

175-54-34170

WASHER

Выбрано товаров: 16