Запчасти Komatsu PC1600-1 ОСНОВН. КОНСТРУКЦИЯ¤ ЛЕВ. КАБИНА ОПЕРАТОРА И СИСТЕМА УПРАВЛЕНИЯ

Схема запчастей Komatsu PC1600-1 - ОСНОВН. КОНСТРУКЦИЯ¤ ЛЕВ. КАБИНА ОПЕРАТОРА И СИСТЕМА УПРАВЛЕНИЯ
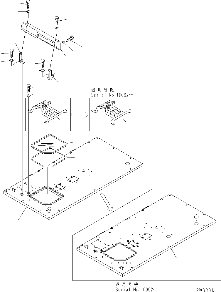
1
1
2
3
4
5
6
7
8
9
9
9
10
10
10
11
12
12
13
14
15
FIT
1:1
100%

Артикул

Название

Примечание

Количество

1

21T-54-71582

FRAME,FLOOR, L.H.

1

21T-54-71581

FRAME,FLOOR, L.H.

2

21T-54-71860

BRACKET,L.H.

3

01010-81225

BOLT

3

01010-51225

BOLT

4

01643-31232

WASHER

5

21T-54-71880

BRACKET,L.H.

6

01010-81225

BOLT

6

01010-51225

BOLT

7

01643-31232

WASHER

8

21T-54-71711

COVER,L.H.

9

195-54-43210

BOLT

10

198-54-42280

WASHER

11

21T-54-71830

SASH

12

21T-54-71842

BRACKET

12

21T-54-71841

BRACKET

13

195-54-43210

BOLT

14

198-54-42280

WASHER

15

21T-00-71210

TAPE

Выбрано товаров: 19