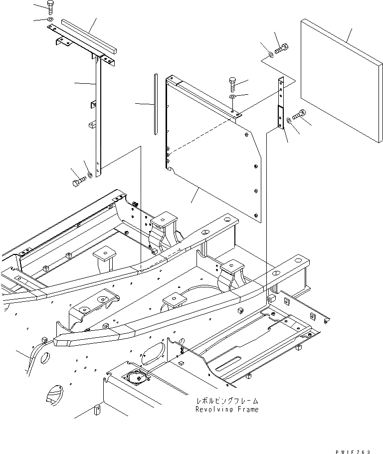
Запчасти Komatsu PC160LC-7K-KA РАМА (КАБИНА) ЧАСТИ КОРПУСА

Схема запчастей Komatsu PC160LC-7K-KA - РАМА (КАБИНА) ЧАСТИ КОРПУСА
1
2
3
3
4
4
5
6
7
8
9
10
11
12
13
14
FIT
1:1
100%

Артикул

Название

Примечание

Количество

|1

21K-54-71211

FRAME

1

FRAME

2

21K-54-71230

SHEET

3

01010-81230

BOLT

4

01643-31232

WASHER

|5

21K-54-71241

FRAME

5

FRAME

6

21K-54-71280

SHEET

7

21K-54-71290

SHEET

8

01010-81230

BOLT

9

01643-31232

WASHER

10

21K-54-71270

FRAME

11

01010-81225

BOLT

12

01643-31232

WASHER

13

01010-81230

BOLT

14

01643-31232

WASHER

Выбрано товаров: 16