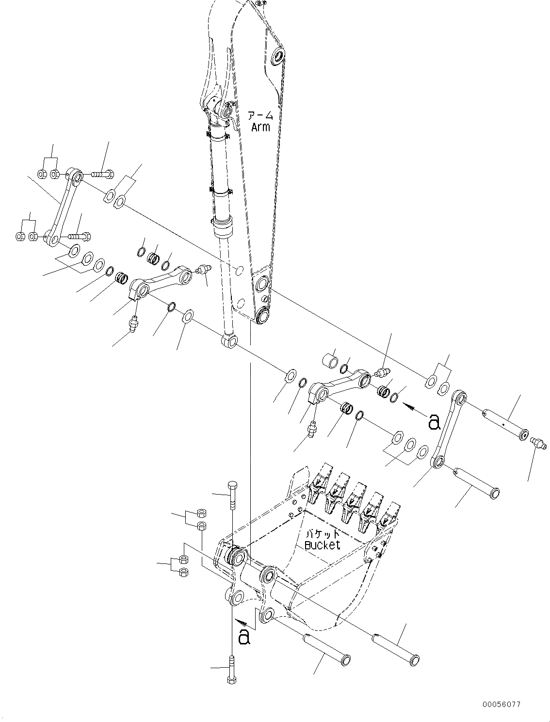
Запчасти Komatsu PC160LC-8 ЧАС. СИСТ. СМАЗКИ ТИП, БЫСТРОСЪЕМН. МЕХ-М, СОЕДИНЕНИЕ КОВША РАБОЧЕЕ ОБОРУДОВАНИЕ

Схема запчастей Komatsu PC160LC-8 - ЧАС. СИСТ. СМАЗКИ ТИП, БЫСТРОСЪЕМН. МЕХ-М, СОЕДИНЕНИЕ КОВША РАБОЧЕЕ ОБОРУДОВАНИЕ
6
7
3
14
25
24
23
22
21
14
14
13
12
11
10
9
8
7
6
5
5
4
3
2
1
3
3
6
6
14
24
7
7
2
20
19
18
17
16
15
FIT
1:1
100%

Артикул

Название

Примечание

Количество

1

21K-70-73111

Link

2

21K-70-13150

Bushing

3

20Y-70-23220

Seal, Dust

4

21K-70-73121

Link

5

21K-70-13150

Bushing

6

20Y-70-23220

Seal, Dust

7

07020-00000

Fitting, Grease

8

21K-70-23130

Spacer

9

21K-70-73140

Plate

10

21K-70-73131

Plate

11

21K-70-23191

Pin

12

01019-11640

Bolt

13

01580-11613

Nut

14

21Y-70-14790

Spacer, T=1.0mm

15

21K-70-23140

Pin

16

01011-81660

Bolt

17

01580-11613

Nut

18

21K-70-23140

Pin

19

01011-81690

Bolt

20

01580-11613

Nut

21

21K-70-23220

Pin

22

01019-11640

Bolt

23

01580-11613

Nut

24

203-70-24170

Spacer, T=1.0mm

25

07020-00000

Fitting, Grease

Выбрано товаров: 25