Запчасти Komatsu PC16R-2 МАРКИРОВКА (КАБИНА) (/) МАРКИРОВКА

Схема запчастей Komatsu PC16R-2 - МАРКИРОВКА (КАБИНА) (/) МАРКИРОВКА
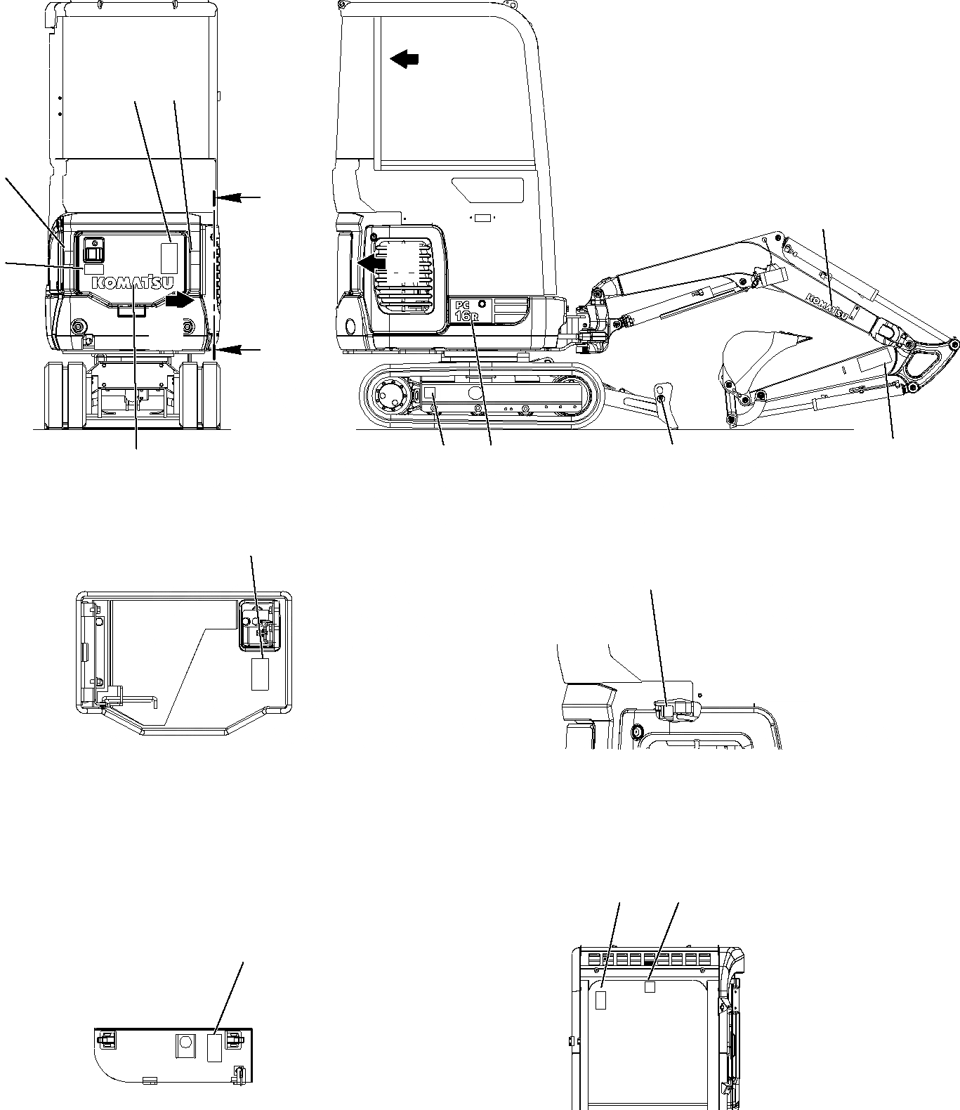
1
4
1
8
2
9
7
5
6
3
10
11
14
13
12
a
a
b
b
c
c
c
d
d
FIT
1:1
100%

Артикул

Название

Примечание

Количество

1

22L-09-R4340

MARK PLATE, REFLEX REFLECTOR

2

22L-09-R4120

MARK PLATE, (ENGINE HOOD)

3

22L-09-R4150

MARK PLATE, KOMATSU (L=450)

4

22L-98-22270

PLATE

5

21D-98-11860

PLATE, ANCHOR POINT

6

20W-98-91130

MARK PLATE, 14R-2

7

22L-09-R4160

PLATE, LIFTING POINT

8

22L-09-R4140

MARK PLATE, KOMATSU (L=260)

9

22L-09-R4110

PLATE, SAFETY, KEEP OUT TURNING AREA

10

09651-A0481

PLATE

11

22L-09-R4170

PLATE, COOLANT

12

22J-973-2930

PLATE

13

22L-98-18270

MARK PLATE, SAFETY, EMERGENCY EXIT

14

09803-A0481

MARK PLATE, LOCKIN FRONT WINDOW

Выбрано товаров: 14