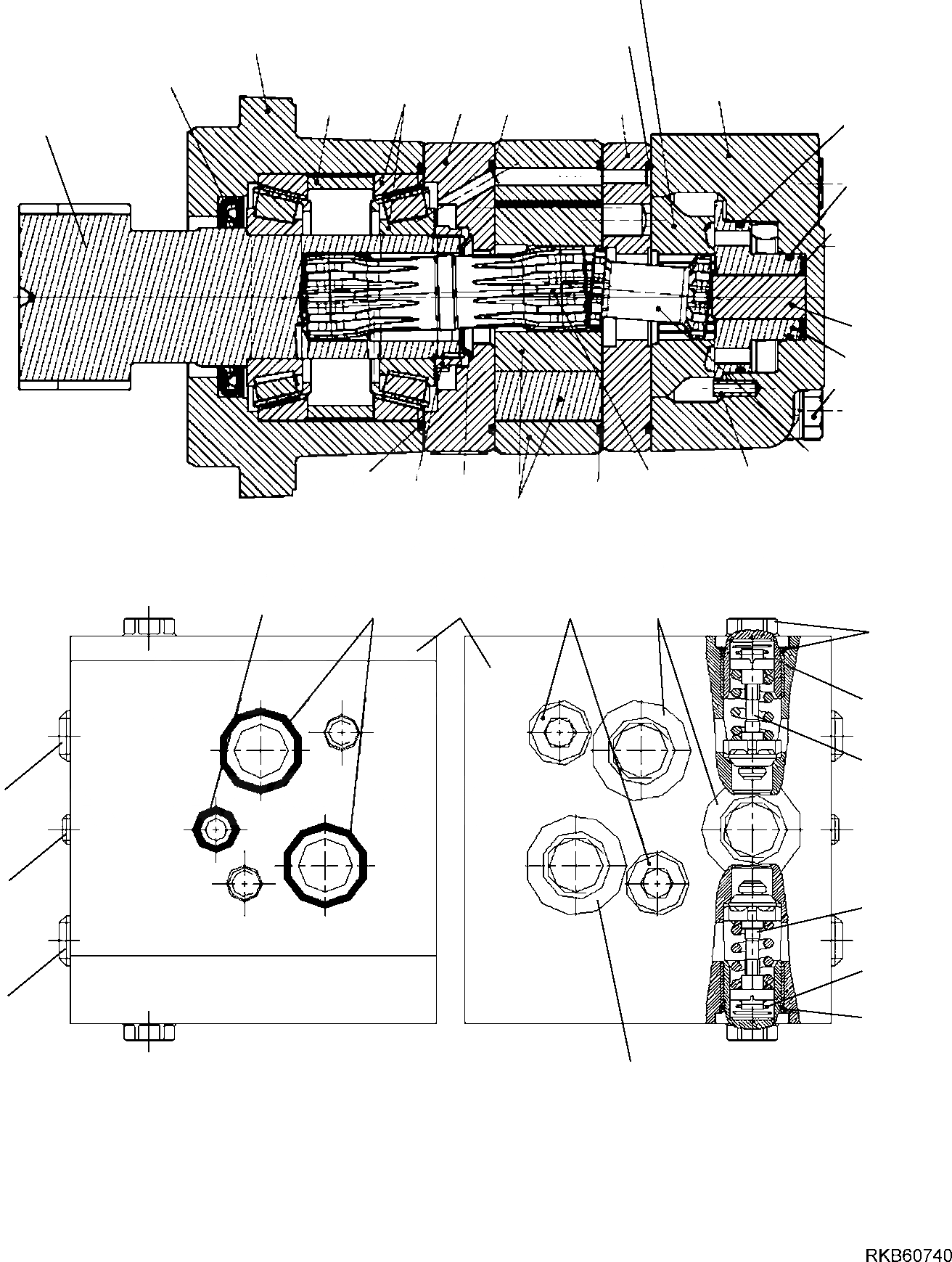
Запчасти Komatsu PC16R-3 HS МОТОР ПОВОРОТА РАБОЧЕЕ ОБОРУДОВАНИЕ ГИДРАВЛИКА

Схема запчастей Komatsu PC16R-3 HS - МОТОР ПОВОРОТА РАБОЧЕЕ ОБОРУДОВАНИЕ ГИДРАВЛИКА
3
16
9
13
1
22
23
16
4
20
15
19
14
7
6
2
12
5
8
11
17
18
16
21
10
32
30
24
31
33
25
27
26
28
29
26
27
28
25
33
FIT
1:1
100%

Артикул

Название

Примечание

Количество

\0

20W-60-91301

SWING MOTOR, ASSEMBLY

\0

20W-60-91310

HYDRAULIC MOTOR, ASSEMBLY

1

22L-09-R9520

VALVE

2

22L-09-R9530

PLATE

3

22L-09-R9540

DISK

4

22L-09-R9550

PLATE

5

22L-09-R9560

VALVE

6

22L-09-R9570

SPACER

7

22L-09-R9580

SPRING WASHER

8

22L-09-R9590

PIN, SPRING

9

22L-09-R9610

FLANGE

10

22L-09-R9620

GEAR

11

22L-09-R9630

SHAFT

12

22L-09-R9640

SCREW

13

22L-09-R9650

SEAL

14

22L-09-R9470

O-RING

15

22L-09-R9670

O-RING

16

22L-09-R9680

O-RING

17

22L-09-R9690

O-RING

18

22L-09-R9710

SEAL

19

22L-09-R9720

SHAFT

20

22L-09-R9730

SPACER

21

22L-09-R9740

NUT

22

22L-09-R9750

BEARING

23

22L-09-R9770

PLATE

\23

20W-60-91320

DOUBLE SHOCK VALVE

24

22L-09-R9410

BLOCK, VALVE

25

22L-09-R9420

PLUG

26

22L-09-R9430

PIN

27

22L-09-R9440

SPRING

28

22L-09-R9450

PLUG

29

22L-09-R9460

PLUG

30

22L-09-R9470

O-RING

31

22L-09-R9480

SCREW

32

22L-09-R9490

O-RING

33

22L-09-R9510

PLUG

Выбрано товаров: 0