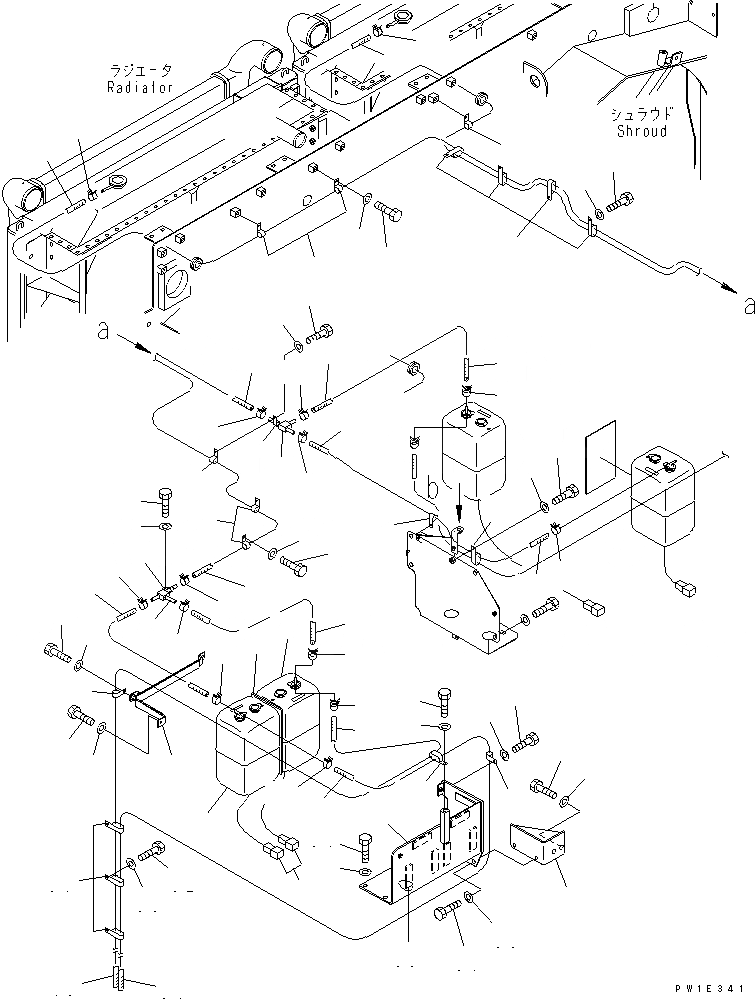
Запчасти Komatsu PC1800-6-M1 ОХЛАЖД-Е (ВТОРИЧН. БАК) (/)(№-) СИСТЕМА ОХЛАЖДЕНИЯ

Схема запчастей Komatsu PC1800-6-M1 - ОХЛАЖД-Е (ВТОРИЧН. БАК) (/)(№-) СИСТЕМА ОХЛАЖДЕНИЯ
1
1
2
2
3
3
4
4
5
5
6
7
8
9
10
11
11
11
12
12
13
13
14
14
15
16
17
18
19
19
20
21
21
22
22
23
23
24
25
26
27
28
28
29
29
30
30
31
32
33
34
34
35
35
36
37
38
39
40
41
42
43
43
44
45
46
47
48
49
50
51
52
53
54
54
55
56
57
58
FIT
1:1
100%

Артикул

Название

Примечание

Количество

1

21T-03-64350

HOSE

2

07285-00110

CLIP

3

21T-03-64330

HOSE

4

07285-00110

CLIP

5

04434-51212

CLIP

|5

04434-51212

CLIP

6

01010-81220

BOLT

|6

01010-81220

BOLT

7

01643-31232

WASHER

|7

01643-31232

WASHER

8

04435-51212

CLIP

9

01010-81220

BOLT

10

01643-31232

WASHER

11

04434-51212

CLIP

12

01010-81220

BOLT

13

01643-31232

WASHER

14

21N-03-32210

JOINT

15

04434-51212

CLIP

16

01010-81220

BOLT

17

01643-31232

WASHER

18

209-03-77430

HOSE¤ 450MM

19

07285-00110

CLIP

20

21T-03-64340

HOSE

21

07285-00110

CLIP

22

208-03-58310

HOSE

23

07285-00110

CLIP

24

04434-51212

CLIP

25

04435-51212

CLIP

26

01010-81220

BOLT

27

01643-31232

WASHER

28

209-03-77440

HOSE¤ 300MM

29

07285-00110

CLIP

30

21N-03-31490

TANK

31

21N-03-32360

CONNECTOR

32

21T-03-64311

BRACKET

33

205-03-71440

SHEET

34

01010-81230

BOLT

35

01643-31232

WASHER

36

21T-03-64320

BRACKET

37

01010-81230

BOLT

38

01643-31232

WASHER

39

209-03-78170

SHEET

40

21T-03-67253

BAND

41

01010-80820

BOLT

42

01643-30823

WASHER

43

209-03-77370

HOSE¤ 3700MM

44

07285-00110

CLIP

45

04435-51212

CLIP

46

01010-81220

BOLT

47

01643-31232

WASHER

48

04434-51212

CLIP

49

01010-81220

BOLT

50

01643-31232

WASHER

51

04435-51212

CLIP

52

01010-81220

BOLT

53

01643-31232

WASHER

54

209-03-77370

HOSE¤ 3700MM

55

07285-00110

CLIP

56

04434-51212

CLIP

57

01010-81220

BOLT

58

01643-31232

WASHER

Выбрано товаров: 61