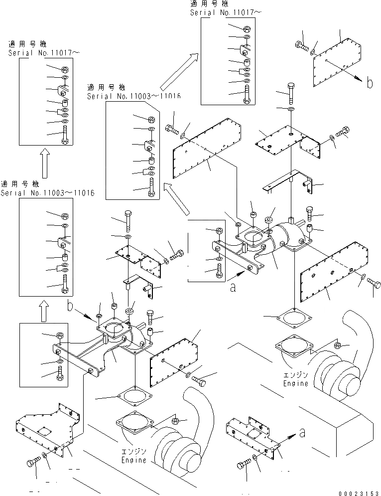
Запчасти Komatsu PC1800-6-M1 INTAKE И ВЫПУСКН. (ВЫПУСКН.)(№-) КОМПОНЕНТЫ ДВИГАТЕЛЯ

Схема запчастей Komatsu PC1800-6-M1 - INTAKE И ВЫПУСКН. (ВЫПУСКН.)(№-) КОМПОНЕНТЫ ДВИГАТЕЛЯ
1
2
3
4
5
6
7
8
8
8
9
9
9
9A
10
10
10
11
11
11
11A
11A
11B
11B
12
13
14
15
16
17
18
19
20
20
21
21
22
23
24
25
26
27
28
29
30
31
32
32
32
33
33
33
33
33
33
33A
34
34
34
35
35
35
35A
35A
35B
35B
36
37
38
39
40
41
42
43
44
44
45
45
46
47
48
FIT
1:1
100%

Артикул

Название

Примечание

Количество

1

6211-11-5890

GASKET

2

6631-11-5630

SPACER

3

01010-81050

BOLT

4

01580-11008

NUT

5

6136-51-6190

SPACER

6

6131-12-5920

SPACER

7

209-62-11810

SPACER

8

21T-01-64270

PIPE

9

01010-81085

BOLT

|9

01010-81075

BOLT

|9

01010-81025

BOLT

9A

01643-31032

WASHER

10

01580-11008

NUT

11

01643-31032

WASHER

11A

6218-11-5910

SPACER

11B

01643-31032

WASHER

12

21T-01-67191

BRACKET

13

21T-01-67231

COVER

14

01010-81075

BOLT

15

01643-31032

WASHER

16

01010-81020

BOLT

17

01643-31032

WASHER

18

21T-01-67211

COVER

19

21T-01-67221

COVER

20

01010-81020

BOLT

21

01643-31032

WASHER

22

21T-01-64190

COVER

23

01010-81020

BOLT

24

01643-31032

WASHER

25

6211-11-5890

GASKET

26

6631-11-5630

SPACER

27

01010-81050

BOLT

28

01580-11008

NUT

29

6136-51-6190

SPACER

30

6131-12-5920

SPACER

31

209-62-11810

SPACER

32

21T-01-64280

PIPE

33

01010-81085

BOLT

33

01010-81075

BOLT

|33

01010-81025

BOLT

33A

01643-31032

WASHER

34

01580-11008

NUT

35

01643-31032

WASHER

35A

6218-11-5910

SPACER

35B

01643-31032

WASHER

36

21T-01-67241

BRACKET

37

21T-01-67271

COVER

38

01010-81075

BOLT

39

01643-31032

WASHER

40

01010-81020

BOLT

41

01643-31032

WASHER

42

21T-01-67252

COVER

43

21T-01-67262

COVER

44

01010-81020

BOLT

45

01643-31032

WASHER

46

21T-01-64210

COVER

47

01010-81020

BOLT

48

01643-31032

WASHER

Выбрано товаров: 58