Запчасти Komatsu PC1800-6 КЛАПАН SERVICE PORT (+ЯC СПЕЦ-Я.) ГИДРАВЛИКА

Схема запчастей Komatsu PC1800-6 - КЛАПАН SERVICE PORT (+ЯC СПЕЦ-Я.) ГИДРАВЛИКА
1
1
1
1
2
2
2
2
3
3
3
3
4
4
4
4
5
6
7
8
9
10
11
12
FIT
1:1
100%

Артикул

Название

Примечание

Количество

1

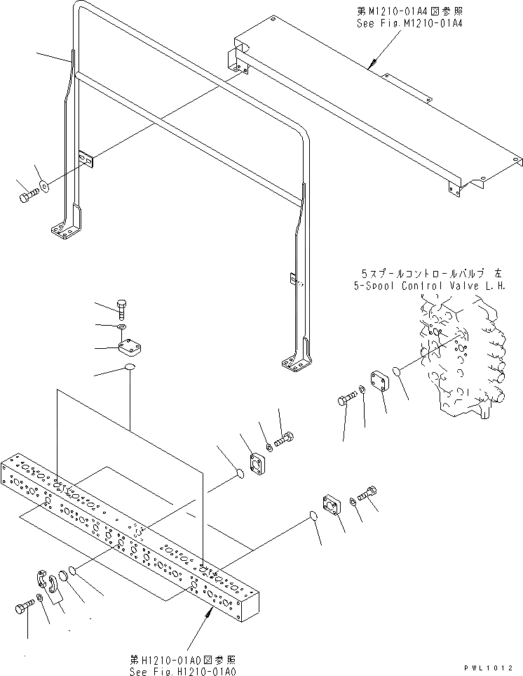
209-62-52220

PLATE

2

01010-81455

BOLT

3

01643-31445

WASHER

4

07000-B3048

O-RING

5

07378-11410

HEAD

6

07371-51470

FLANGE

7

01010-81455

BOLT

8

01643-31445

WASHER

9

07000-B3048

O-RING

10

21T-54-67491

HANDRAIL

11

01010-81230

BOLT

12

175-54-34170

WASHER

Выбрано товаров: 12