Запчасти Komatsu PC1800-6 РАМА (/)(№-) ЧАСТИ КОРПУСА

Схема запчастей Komatsu PC1800-6 - РАМА (/)(№-) ЧАСТИ КОРПУСА
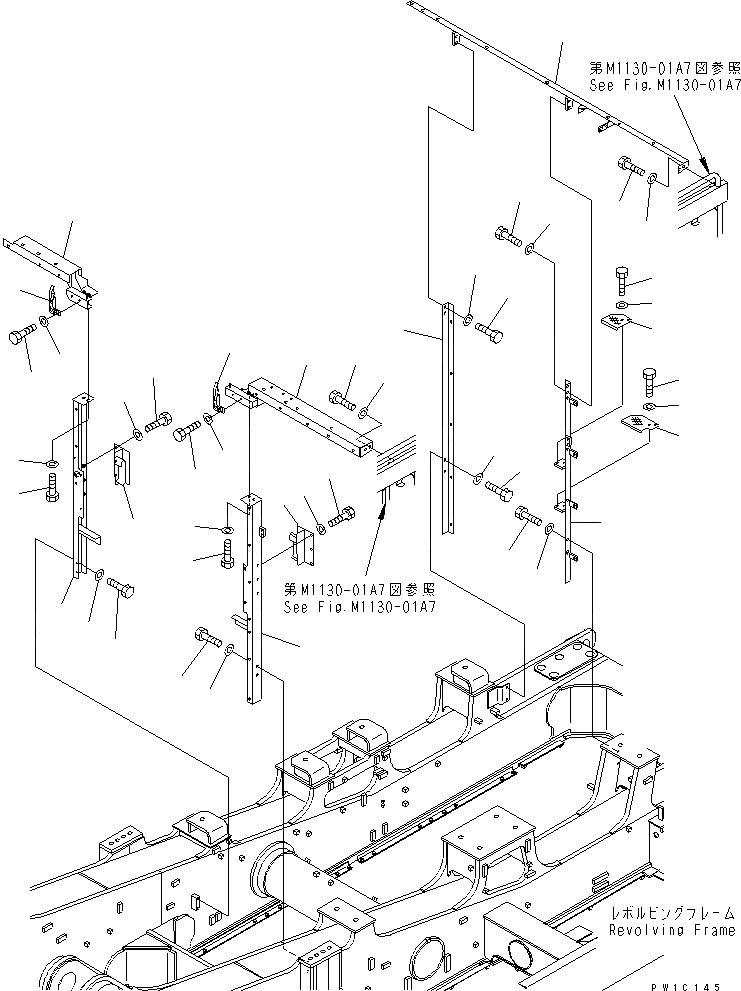
1
2
3
4
5
6
7
8
9
10
11
12
13
14
14
15
15
16
17
18
19
20
21
22
23
24
25
26
26
27
27
28
29
29
30
30
31
32
33
34
35
36
36
37
37
FIT
1:1
100%

Артикул

Название

Примечание

Количество

1

21T-54-73731

FRAME,L.H.

2

01010-81230

BOLT

3

01643-31232

WASHER

4

21T-54-73743

FRAME,R.H.

5

01010-81230

BOLT

6

01643-31232

WASHER

7

21T-54-75480

BRACKET

8

01010-81230

BOLT

9

01643-31232

WASHER

10

21T-54-75490

BRACKET

11

01010-81230

BOLT

12

01643-31232

WASHER

13

21T-54-73781

BRACKET

14

01010-81230

BOLT

15

01643-31232

WASHER

16

21T-54-64270

BRACKET

17

01010-81230

BOLT

18

01643-31232

WASHER

19

205-54-76260

CATCHER

19

205-54-76280

ROTOR ASS'Y

20

01010-80825

BOLT

21

01643-30823

WASHER

22

205-54-76530

CATCHER

23

01010-80825

BOLT

24

01643-30823

WASHER

25

21T-54-68490

BRACKET

26

01010-81230

BOLT

27

01643-31232

WASHER

28

21T-54-73140

BRACKET,R.H.

29

01010-81230

BOLT

30

01643-31232

WASHER

31

21T-54-73291

BRACKET

32

01010-81230

BOLT

33

01643-31232

WASHER

34

21T-54-75450

STEP

35

21T-54-75510

STEP

36

01010-81230

BOLT

37

01643-31232

WASHER

Выбрано товаров: 38