Запчасти Komatsu PC1800-6 КРЫШКА(КАБИНА) (ЗАДН.) (МОРОЗОУСТОЙЧИВ. СПЕЦИФ-Я)(№-999) ЧАСТИ КОРПУСА

Схема запчастей Komatsu PC1800-6 - КРЫШКА(КАБИНА) (ЗАДН.) (МОРОЗОУСТОЙЧИВ. СПЕЦИФ-Я)(№-999) ЧАСТИ КОРПУСА
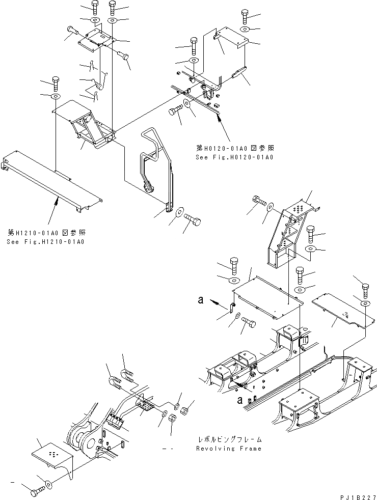
1
2
3
4
4
5
6
7
8
9
10
11
12
13
13
14
14
15
16
17
18
19
20
21
22
22
23
23
24
24
25
26
26
27
27
28
29
30
31
32
33
34
35
35
36
36
37
38
39
40
41
FIT
1:1
100%

Артикул

Название

Примечание

Количество

1

21T-54-75372

STEP

2

01010-81225

BOLT

3

175-54-34170

WASHER

4

21T-54-75390

BRACKET

5

01010-81240

BOLT

6

175-54-34170

WASHER

7

01010-81230

BOLT

8

175-54-34170

WASHER

9

21T-54-75410

STEP

10

01010-81230

BOLT

11

175-54-34170

WASHER

12

21T-54-67350

COVER

13

01010-81230

BOLT

14

175-54-34170

WASHER

15

21T-54-67790

COVER

16

01010-81230

BOLT

17

175-54-34170

WASHER

18

21T-54-67260

BRACKET

19

01010-81230

BOLT

20

01643-31232

WASHER

21

21T-54-68520

STEP

22

07283-34346

CLIP

23

01597-01009

NUT

24

01643-31032

WASHER

25

21T-54-69311

LADDER

26

01010-81230

BOLT

27

175-54-34170

WASHER

28

21T-54-67832

COVER

29

01010-81230

BOLT

30

175-54-34170

WASHER

31

21T-54-67992

HANDRAIL

32

01010-81230

BOLT

33

175-54-34170

WASHER

34

21T-54-69381

LADDER

35

01010-81230

BOLT

36

175-54-34170

WASHER

37

09463-00006

SPRING

38

04050-11610

PIN,COTTER

39

04205-10614

PIN

40

04050-11610

PIN,COTTER

41

04205-10618

PIN

Выбрано товаров: 41