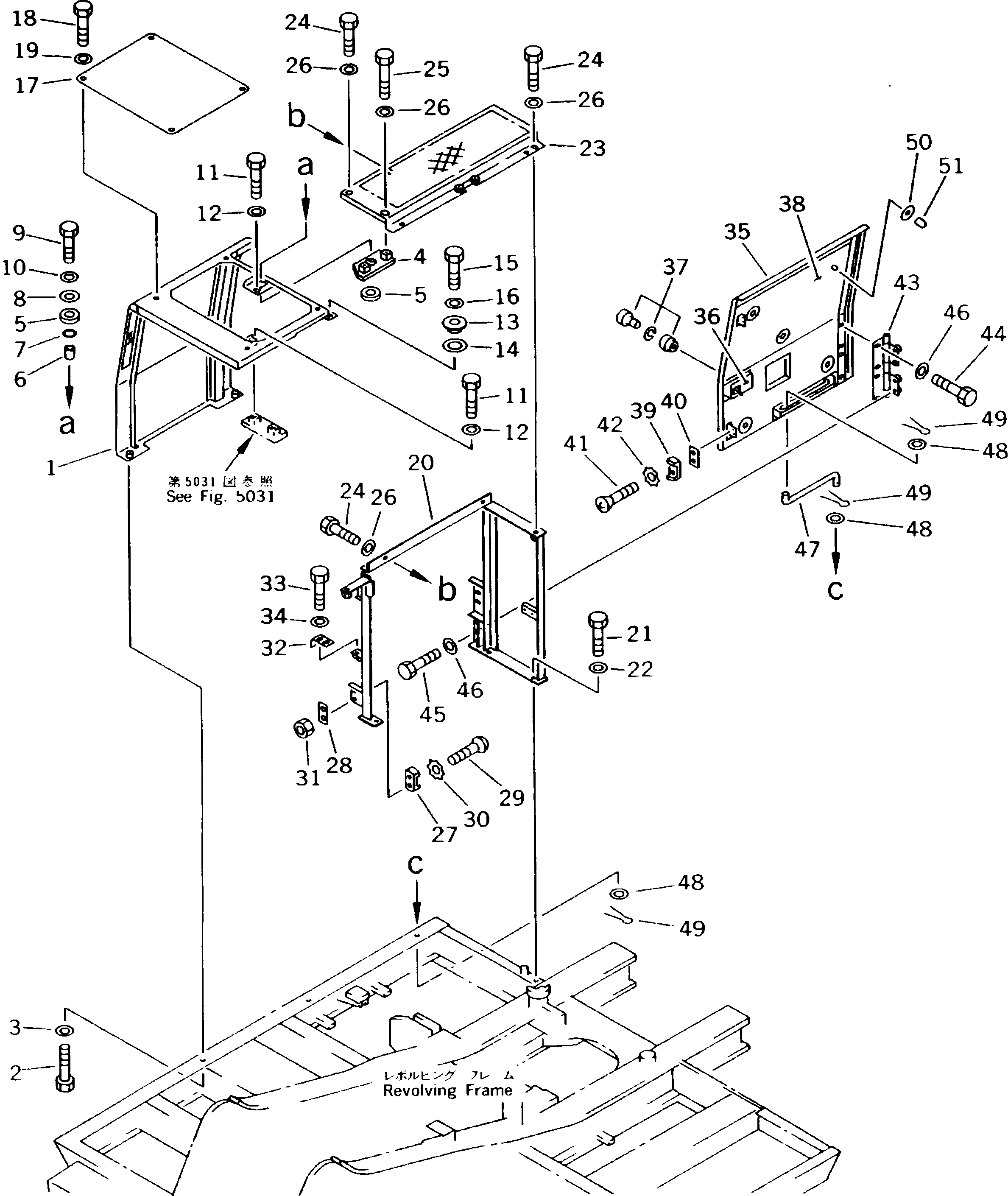
Запчасти Komatsu PC180LC-5K ПРАВ. COVER ЧАСТИ КОРПУСА

Схема запчастей Komatsu PC180LC-5K - ПРАВ. COVER ЧАСТИ КОРПУСА
FIT
1:1
100%

Артикул

Название

Примечание

Количество

1

21K-54-39181

COVER

2

01010-51025

BOLT

3

01643-31032

WASHER

4

203-54-56850

BRACKET

5

203-62-42770

CUSHION

6

20X-62-21550

SPACER

7

07000-03025

O-RING

8

566-35-42430

PLATE

9

01010-51250

BOLT

10

01643-31232

WASHER

11

01016-51040

BOLT

12

01643-31032

WASHER

13

203-54-56920

COLLAR

14

113-54-31350

SEAT

15

01010-51035

BOLT

16

01643-31032

WASHER

17

203-54-52283

COVER

18

01010-51020

BOLT

19

01643-31032

WASHER

20

21P-54-21280

BRACKET

21

01010-51030

BOLT

22

01643-31032

WASHER

23

21K-54-39190

COVER

24

01010-51025

BOLT

25

01016-51040

BOLT

26

01643-31032

WASHER

27

566-54-13410

STRIKER

28

203-54-56790

PLATE

29

01225-40820

SCREW

30

566-54-13570

WASHER

31

01580-10806

NUT

32

203-54-59290

PLATE

33

01010-51025

BOLT

34

01643-31032

WASHER

|35

21P-54-K2341

COVER ASS'Y

35

COVER

36

421-54-11372

LOCK ASS'Y (WELDED)

37

421-54-11381

LOCK

38

21P-54-K2261

SHEET

39

566-54-14420

STOPPER

40

203-54-52610

PLATE

41

01225-40820

SCREW

42

566-54-13570

WASHER

43

203-54-52411

HINGE

44

01010-51225

BOLT

45

01010-51230

BOLT

46

01643-31232

WASHER

47

21K-54-33610

BAR

48

01642-21016

WASHER

49

04050-13018

PIN,COTTER

50

205-54-K5371

WASHER

51

205-54-K5320

CAP

Выбрано товаров: 52