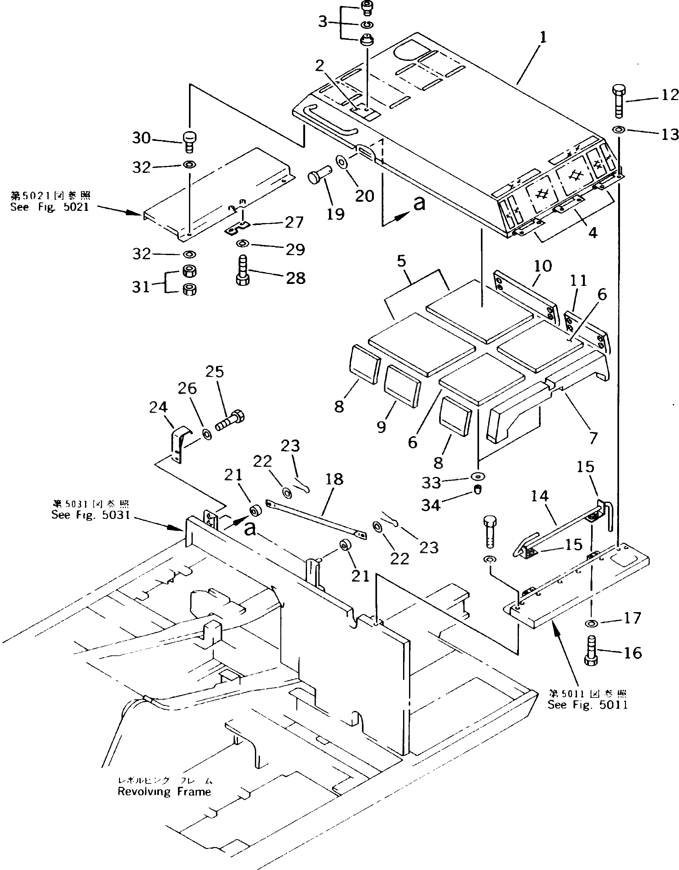
Запчасти Komatsu PC180LLC-5K ЗАДН. КРЫШКА ЧАСТИ КОРПУСА

Схема запчастей Komatsu PC180LLC-5K - ЗАДН. КРЫШКА ЧАСТИ КОРПУСА
FIT
1:1
100%

Артикул

Название

Примечание

Количество

|1

21P-54-K2310

COVER ASS'Y

1

COVER

2

421-54-11372

LOCK ASS'Y (WELDED)

3

421-54-11381

LOCK

4

203-54-52241

HINGE (WELDED)

5

21K-54-K1140

SHEET

6

21K-54-K1120

SHEET

7

21P-54-K2230

SHEET

8

21P-54-K2240

SHEET

9

21P-54-K2250

SHEET

10

21K-54-K1130

SHEET

11

21K-54-K1110

SHEET

12

01010-51030

BOLT

13

01643-31032

WASHER

14

21K-54-39330

BAR,TORSION

15

21K-54-39320

BRACKET

16

01010-51030

BOLT

17

01643-31032

WASHER

18

21K-54-39310

STAY

19

04205-11038

PIN

20

175-54-88110

WASHER

21

21T-72-14930

BOSS

22

01641-21016

WASHER

23

04050-13020

PIN,COTTER

24

21K-54-39740

BRACKET

25

01010-51025

BOLT

26

01643-31032

WASHER

27

21K-54-39350

PLATE

28

01010-51025

BOLT

29

01643-31032

WASHER

30

203-54-56710

STOPPER

31

01580-11008

NUT

32

01643-31032

WASHER

33

205-54-K5371

WASHER

34

205-54-K5320

CAP

Выбрано товаров: 35