Запчасти Komatsu PC18MR-2 ГУСЕНИЧНАЯ РАМА (РЕГУЛЯТОР ТИП) ХОДОВАЯ

Схема запчастей Komatsu PC18MR-2 - ГУСЕНИЧНАЯ РАМА (РЕГУЛЯТОР ТИП) ХОДОВАЯ
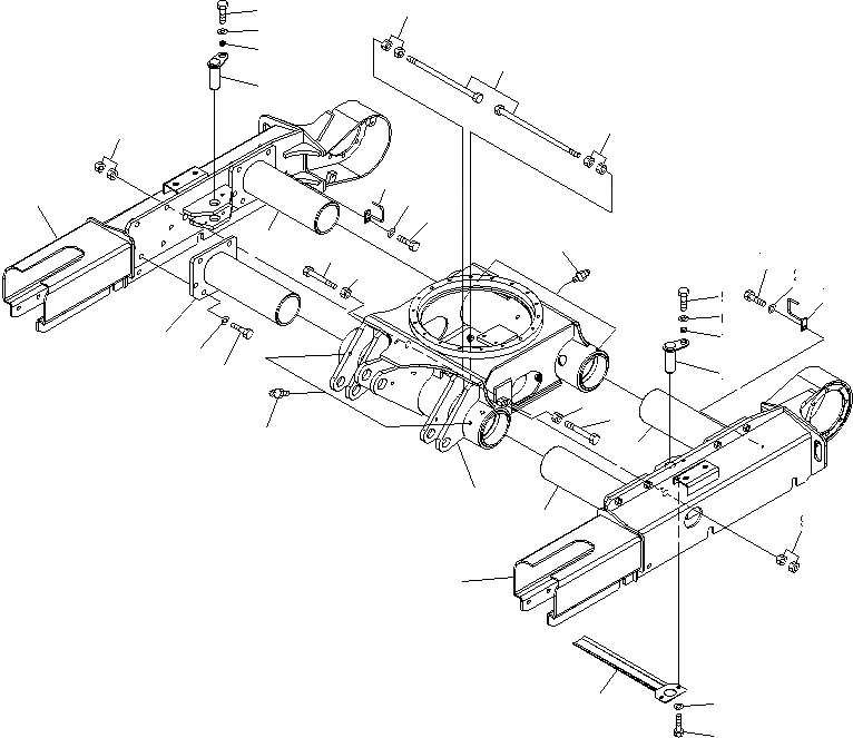
1
2
3
4
4
5
5
6
6
7
7
8
9
9
9
9
10
10
11
11
12
12
12
12
13
14
15
16
17
18
18
19
19
20
20
21
21
FIT
1:1
100%

Артикул

Название

Примечание

Количество

1

22J-35-25712

FRAME,TRACK, CENTER

2

22J-35-25722

FRAME,TRACK, L.H.

3

22J-35-25732

FRAME,TRACK, R.H.

4

22J-71-15120

PIN

5

01010-81025

BOLT

6

01643-31032

WASHER

7

22J-70-11550

COLLAR

8

22J-35-25161

BOLT

9

01580-11613

NUT

10

01011-81200

BOLT

11

01580-11210

NUT

12

22J-35-25740

PIN

13

01010-81240

BOLT

14

01643-31232

WASHER

15

22J-35-25350

GUARD

16

01010-80816

BOLT

17

01643-30823

WASHER

18

22J-35-25750

PLATE

19

01010-80820

BOLT

20

01643-30823

WASHER

21

07020-00000

FITTING,GREASE

Выбрано товаров: 21