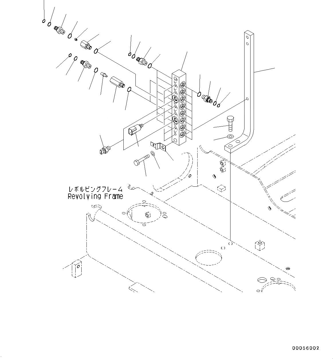
Запчасти Komatsu PC190NLC-8 БЛОК ПЕРЕКЛЮЧЕНИЯ ДАВЛЕНИЯ БЛОК ПЕРЕКЛЮЧЕНИЯ ДАВЛЕНИЯ

Схема запчастей Komatsu PC190NLC-8 - БЛОК ПЕРЕКЛЮЧЕНИЯ ДАВЛЕНИЯ БЛОК ПЕРЕКЛЮЧЕНИЯ ДАВЛЕНИЯ
9
10
8
11
9
10
8
11
16
17
12
14
15
13
20
22
21
19
23
24
25
26
7
6
5
4
1
2
3
18
27
FIT
1:1
100%

Артикул

Название

Примечание

Количество

1

01010-81240

Bolt

2

01643-31232

Washer

3

21K-62-75540

Plate

4

21K-62-75550

Block

5

01010-81260

Bolt

6

01643-31232

Washer

7

08053-01512

Clip

8

20Y-62-16630

Nipple

9

201-60-11390

O-Ring

10

20Y-62-19560

O-Ring

11

07002-11423

O-Ring

11

203-60-62401

Valve Assembly

12

07002-01423

O-Ring

13

20Y-62-22410

Nipple

14

201-60-11390

O-Ring

15

20Y-62-19560

O-Ring

16

Body

17

203-60-62430

Poppet

18

07002-11423

O-Ring

18

203-60-62300

Valve Assembly

19

07002-01423

O-Ring

20

203-60-62310

Nipple

21

201-60-11390

O-Ring

22

20Y-62-19560

O-Ring

23

203-60-62320

Poppet

24

Body

25

07002-11423

O-Ring

26

206-06-61130

Switch

27

7861-93-1840

Sensor

Выбрано товаров: 0