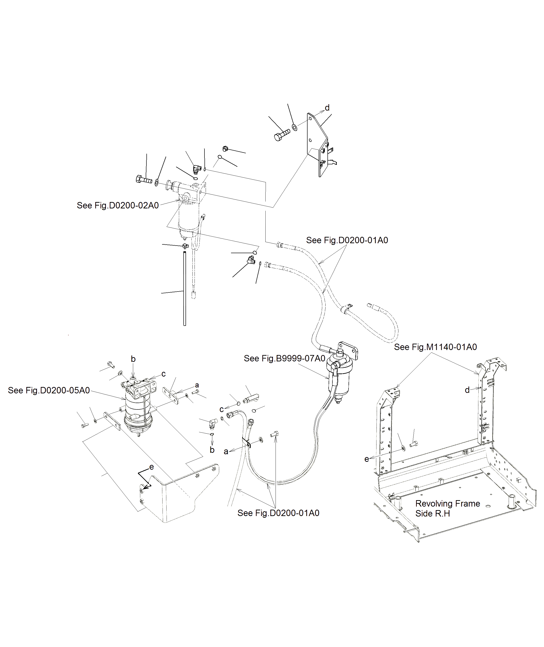
Запчасти Komatsu PC195LC-8 ТОПЛИВН. ПОДАЮЩ. ТРУБЫ, ТОПЛИВН. PRE-ФИЛЬТР., КРЕПЛЕНИЕ D

Схема запчастей Komatsu PC195LC-8 - ТОПЛИВН. ПОДАЮЩ. ТРУБЫ, ТОПЛИВН. PRE-ФИЛЬТР., КРЕПЛЕНИЕ D
12
10
11
6
5
1
2
8
7
9
4
7
5
6
3
24
18
21
19
22
18
17
23
19
16
20
14
15
23
22
13
FIT
1:1
100%

Артикул

Название

Примечание

Количество

1

07372-21235

BOLT

2

01643-51232

WASHER

3

07270-00839

TUBE

4

07285-00100

CLIP

5

02782-10311

ELBOW

6

02896-11009

O-RING

7

07002-11423

O-RING

8

07040-11409

PLUG

9

07002-11423

O-RING

10

21K-04-73121

BRACKET

11

01010-81225

BOLT

12

01643-31232

WASHER

13

21K-04-J7850

BRACKET

14

01010-81225

BOLT

15

01643-30823

WASHER

16

01010-80825

BOLT

17

01643-30823

WASHER

18

01010-81030

BOLT

19

01643-31032

WASHER

20

02782-10311

ELBOW

21

02782-10312

ELBOW

22

07002-11423

O-RING

23

02896-11009

O-RING

24

21K-04-J7860

BRACKET

Выбрано товаров: 24