Запчасти Komatsu PC20-5 КАБИНА (/) ОСНОВНАЯ РАМА И КАБИНА

Схема запчастей Komatsu PC20-5 - КАБИНА (/) ОСНОВНАЯ РАМА И КАБИНА
FIT
1:1
100%

Артикул

Название

Примечание

Количество

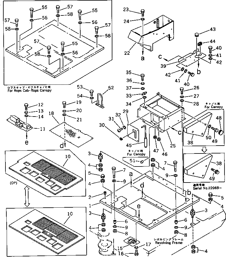
1

20S-54-22111

FRAME

|1

20S-54-22110

FRAME

2

07049-01012

PLUG,(FOR CANOPY)

3

20R-01-12111

CUSHION

4

01580-11210

NUT

5

20T-54-26130

NUT

6

20T-54-11510

BOSS

7

01010-51680

BOLT

8

01580-11613

NUT

9

01643-31645

WASHER

10

20S-54-22210

MAT,FLOOR (FOR CANOPY)

|10

20S-54-22410

MAT,FLOOR (QUICK SHIFT) (FOR CANOP

|10

20S-54-22220

MAT,FLOOR (FOR CAB)

|10

20S-54-22420

MAT,FLOOR (QUICK SHIFT) (FOR CAB)

11

20S-54-22161

COVER

12

01010-51025

BOLT

13

01602-21030

WASHER,SPRING

14

01643-31032

WASHER

15

20S-54-22171

COVER

16

01010-51025

BOLT

17

01602-21030

WASHER,SPRING

18

20S-54-22150

FLOOR

19

01010-51025

BOLT

20

01602-21030

WASHER,SPRING

21

01643-31032

WASHER

22

20S-54-22130

BOX

23

01010-51025

BOLT

24

01602-21030

WASHER,SPRING

25

20S-54-22120

BOX

|25

20T-956-1120

BOX,(FOR ROPS CAB¤ ROPS CANOPY)

26

01010-51025

BOLT

27

01602-21030

WASHER,SPRING

28

01643-31032

WASHER

29

20S-54-22230

PLATE

30

20S-54-12310

GROMMET

31

01220-40616

SCREW

32

01602-20619

WASHER,SPRING

33

20S-54-22240

PLATE

34

20S-54-22250

SHEET

35

01010-50620

BOLT

36

01602-20619

WASHER,SPRING

37

01643-30623

WASHER

38

20S-54-22181

COVER

|38

20S-54-22180

COVER

39

20S-54-22190

COVER

40

01010-51025

BOLT

41

01602-21030

WASHER,SPRING

42

01643-31032

WASHER

43

09415-05016

CAP

44

20S-54-12340

CAP,(FOR CANOPY)

|44

120-06-24110

GROMMET,(FOR CAB)

45

20S-54-12220

PIN

46

08037-01610

GROMMET

47

09415-01610

CAP

48

09415-02512

CAP,(FOR CANOPY)

49

20S-54-22270

BOLT,(FOR CANOPY)

|49

01010-51065

BOLT,(FOR CANOPY)

50

01602-21030

WASHER,SPRING (FOR CANOPY)

51

07049-01012

PLUG,(FOR CANOPY)

52

20S-54-22310

GUARD

53

01010-51020

BOLT

54

01602-21030

WASHER,SPRING

55

01010-51630

BOLT

56

01643-31645

WASHER

57

01010-51225

BOLT

58

01643-31232

WASHER

Выбрано товаров: 66