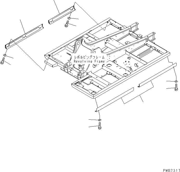
Запчасти Komatsu PC200-6 ОСНОВНАЯ РАМА БАМПЕР (RENTAL СПЕЦ-Я.)(№987-) ОСНОВНАЯ РАМА И ЕЕ ЧАСТИ

Схема запчастей Komatsu PC200-6 - ОСНОВНАЯ РАМА БАМПЕР (RENTAL СПЕЦ-Я.)(№987-) ОСНОВНАЯ РАМА И ЕЕ ЧАСТИ
1
1
2
2
2
3
3
3
4
5
6
FIT
1:1
100%

Артикул

Название

Примечание

Количество

1

20Y-46-22840

GUARD

2

01010-D1225

BOLT

3

01643-71232

WASHER

4

20Y-46-23840

GUARD

5

01010-D1225

BOLT

6

01643-71232

WASHER

Выбрано товаров: 6