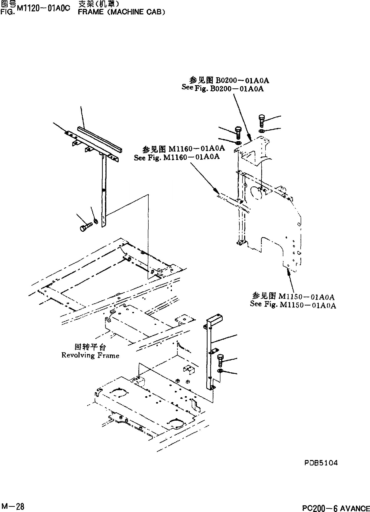
Запчасти Komatsu PC200-6 РАМА (КАБИНА) ЧАСТИ КОРПУСА]

Схема запчастей Komatsu PC200-6 - РАМА (КАБИНА) ЧАСТИ КОРПУСА]
8
9
8
9
2
1
4
3
5
6
7
FIT
1:1
100%

Артикул

Название

Примечание

Количество

1

20Y-54-25321

FRAME

2

20Y-54-29280

SHEET

3

01010-81230

BOLT

4

01643-31232

WASHER

5

20Y-54-25331

FRAME

6

01010-81230

BOLT

7

01643-31232

WASHER

8

01010-81230

BOLT

9

01643-31232

WASHER

Выбрано товаров: 0