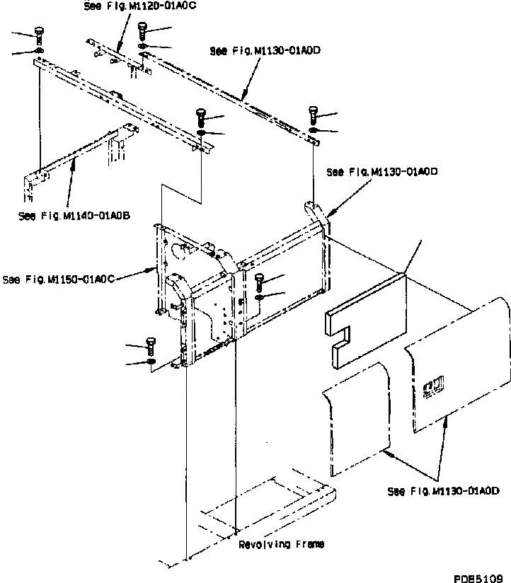
Запчасти Komatsu PC200-6B ЛЕВ. ДВЕРЬ (ЧАСТИ Д/УСТАНОВКИ) (MACHINE КАБИНА) (PC-B) ЧАСТИ КОРПУСА

Схема запчастей Komatsu PC200-6B - ЛЕВ. ДВЕРЬ (ЧАСТИ Д/УСТАНОВКИ) (MACHINE КАБИНА) (PC-B) ЧАСТИ КОРПУСА
4
5
6
7
4
5
6
7
3
3
2
1
2
FIT
1:1
100%

Артикул

Название

Примечание

Количество

1

01010-81230

BOLT

2

01643-31232

WASHER

3

20Y-54-B1350

SHEET

|3

20Y-54-25211

SHEET

|3

20Y-54-25210

SHEET

4

01010-81230

BOLT

5

01643-31232

WASHER

6

01010-81230

BOLT

7

01643-31232

WASHER

Выбрано товаров: 9