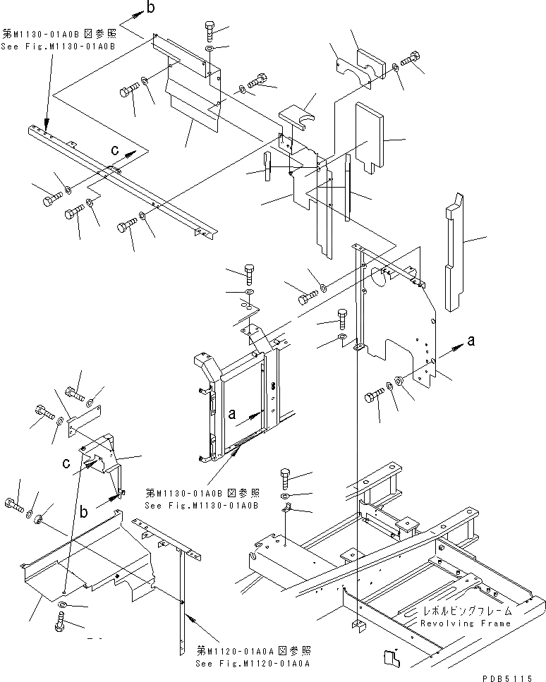
Запчасти Komatsu PC200-6S ПЕРЕГОРОДКА. (КАБИНА)(№C-) ЧАСТИ КОРПУСА

Схема запчастей Komatsu PC200-6S - ПЕРЕГОРОДКА. (КАБИНА)(№C-) ЧАСТИ КОРПУСА
1
2
3
4
5
6
7
8
9
10
11
12
13
14
15
15
16
16
17
18
19
20
21
22
23
23
24
24
25
25
26
26
27
28
29
30
30
30
31
31
31
32
33
34
35
36
37
38
FIT
1:1
100%

Артикул

Название

Примечание

Количество

1

20Y-54-26211

COVER

2

20Y-54-26233

COVER

3

20Y-54-26392

COVER

4

20Y-54-25530

SHEET

5

20Y-54-C1146NK

COVER

5

20Y-54-25511

COVER

6

20Y-54-25230

SHEET

7

20Y-54-25240

SHEET

8

20Y-54-25250

SHEET

9

20Y-54-25260

SHEET

10

01010-81230

BOLT

11

175-54-34170

WASHER

12

20Y-54-12550

COLLAR

13

01010-81230

BOLT

14

01643-31232

WASHER

15

01010-81230

BOLT

16

01643-31232

WASHER

17

01010-81230

BOLT

18

01643-31232

WASHER

19

20Y-54-12550

COLLAR

20

01010-81230

BOLT

21

01643-31232

WASHER

22

20Y-54-26221

COVER

23

01010-81230

BOLT

24

01643-31232

WASHER

25

01010-81230

BOLT

26

01643-31232

WASHER

27

20Y-54-25521

COVER

28

01010-81230

BOLT

29

01643-31232

WASHER

30

01010-81230

BOLT

31

175-54-34170

WASHER

32

20Y-54-C1150NK

COVER

32

20Y-54-27682

COVER

33

20Y-54-27570

SHEET

34

01010-81230

BOLT

35

01643-31232

WASHER

36

20Y-54-12320

CATCH

37

01010-81230

BOLT

38

01643-31232

WASHER

Выбрано товаров: 40