Качественные детали и логистика
Оригинальные и аналоговые запчасти с доставкой по России, Казахстану и Беларуси
©2022 PartSell ООО "Система" ИНН 2463123282 ОГРН 1212400004838
Центральный офис: г. Красноярск, Академика Киренского, д.87, пом.4
Телефон: 8 (800) 777-65-74 Email: zakaz@partsell.ru
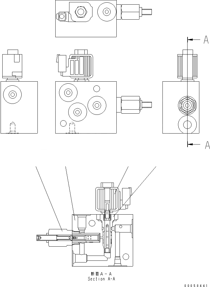
БЫСТРОСЪЕМН. МЕХ-М КЛАПАН(№-)
№
Артикул
Название
Примечание
Количество
|$1
20J-62-13141
VALVE ASS'Y
1
20J-06-11640
COIL
2
20J-60-11590
VALVE,SOLENOID
3
20J-60-11580
VALVE,PRESSURE REDUCING
4
20J-60-11570
BLOCK
Выбрано товаров: 0