Запчасти Komatsu PC200-8E0 БОКОВ. КРЫШКА (№8-) БОКОВ. КРЫШКА

Схема запчастей Komatsu PC200-8E0 - БОКОВ. КРЫШКА (№8-) БОКОВ. КРЫШКА
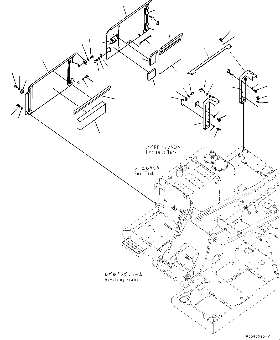
1
2
3
5
4
10
9
11
13
12
14
16
15
17
19
18
20
22
21
23
24
25
26
31
30
35
38
38
36
36
39
39
37
37
35
7
7
8
6
32
33
34
27
29
28
FIT
1:1
100%

Артикул

Название

Примечание

Количество

1

20Y-54-71411

Frame

2

20Y-54-71421

Frame

3

20Y-54-71431

Plate

4

01010-81225

Bolt

5

01643-31232

Washer

6

20Y-54-71454

Cover

7

20Y-54-63414

Hinge,Welded

8

20Y-54-71491

Lock,Welded

9

01010-81225

Bolt

10

01643-31232

Washer

11

20Y-54-61470

Plate

12

01010-81225

Bolt

13

01643-31232

Washer

14

205-54-53550

Dovetail

15

01010-80612

Bolt

16

01643-30623

Washer

17

20Y-54-28170

Bracket

18

01010-81225

Bolt

19

01643-31232

Washer

20

205-54-51970

Dovetail

21

01010-80616

Bolt

22

01643-30623

Washer

23

20Y-54-11611

Stopper

24

01580-11008

Nut

25

205-54-31410

Sheet

26

20Y-54-29232

Bar

27

205-54-31420

Sheet

28

205-54-31440

Sheet

29

205-54-31430

Sheet

30

01010-81230

Bolt

31

01643-31232

Washer

31

20Y-54-71153

Cover

32

Cover

33

20Y-54-61391

Sheet

34

20Y-54-76910

Sheet

35

208-54-57180

Collar

36

01010-81230

Bolt

37

01643-31232

Washer

38

01010-81240

Bolt

39

01643-31232

Washer

Выбрано товаров: 40