Запчасти Komatsu PC200-8M0 ПОВОРОТНОЕ СОЕДИНЕНИЕ (СОЕДИНИТЕЛЬН. ЧАСТИ) N [ПОВОРОТН. КРУГ И ITS КОМПОНЕНТЫ]

Схема запчастей Komatsu PC200-8M0 - ПОВОРОТНОЕ СОЕДИНЕНИЕ (СОЕДИНИТЕЛЬН. ЧАСТИ) N [ПОВОРОТН. КРУГ И ITS КОМПОНЕНТЫ]
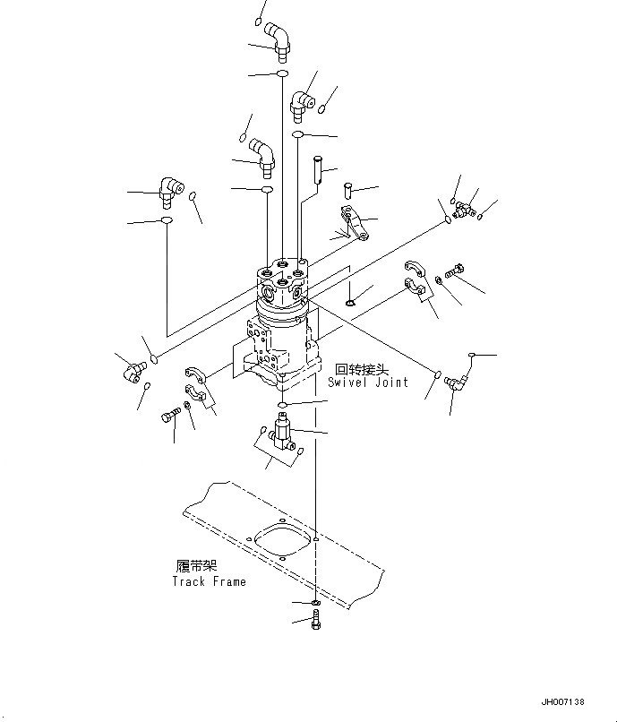
2
15
1
5
6
6
10
23
16
16
19
20
3
12
4
13
5
8
7
16
5
5
6
17
21
18
14
5
2
15
1
8
3
11
9
22
16
6
FIT
1:1
100%

Артикул

Название

Примечание

Количество

1

07372-21035

BOLT

2

01643-51032

WASHER

3

07371-31049

FLANGE, SPLIT

4

02781-00522

UNION

5

07002-12434

O-RING

6

02782-10628

ELBOW

7

11Y-62-12160

ELBOW

8

07002-11423

O-RING

9

11Y-62-12250

TEE

10

20Y-62-41930

TEE

11

02896-11012

O-RING

12

07002-12434

O-RING

13

02896-11015

O-RING

14

02896-11008

O-RING

15

02896-11008

O-RING

16

02896-61018

O-RING

17

20Y-62-54251

BRACKET

18

22U-62-21870

PIN

19

22U-62-24420

PIN

20

201-60-11230

PIN

21

04050-14028

PIN, COTTER

22

01010-81235

BOLT

23

01643-31232

WASHER

Выбрано товаров: 23