Запчасти Komatsu PC200-8M0 ЭЛЕКТРИЧ. ПРОВОДКА ( AMP. УПЛОТНЕНИЕED ГЕНЕРАТОР) (DISCONNECT ПЕРЕКЛЮЧАТЕЛЬ) E [ЭЛЕКТРИКА]

Схема запчастей Komatsu PC200-8M0 - ЭЛЕКТРИЧ. ПРОВОДКА ( AMP. УПЛОТНЕНИЕED ГЕНЕРАТОР) (DISCONNECT ПЕРЕКЛЮЧАТЕЛЬ) E [ЭЛЕКТРИКА]
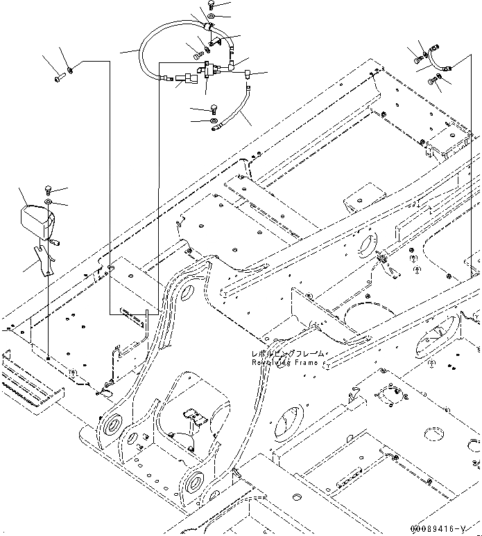
16
15
9
17
18
8
9
8
12
13
11
19
20
21
21
20
7
6
5
3
2
1
14
4
4
10
FIT
1:1
100%

Артикул

Название

Примечание

Количество

1

08068-00001

SWITCH, BATTERY

2

20Y-06-D1680

CABLE, GROUND

3

20Y-06-D1690

CABLE, GROUND

4

08038-00035

CAP, TERMINAL

5

04434-52711

CLIP

6

07095-20419

CUSHION

7

203-62-56381

BRACKET

8

01010-81020

BOLT

9

01643-31032

WASHER

10

01245-00830

SCREW, HEXAGON SOCKET HEAD

11

01643-70823

WASHER

12

01010-81025

BOLT

13

01643-31032

WASHER

14

08038-22511

CAP

15

20Y-06-D1870

LAMP ASSEMBLY, WORKING

|$16

21T-06-32810

LAMP ASSEMBLY, WORKING

-

20Y-06-D1890

BULB, 70WATT

|$18

421-06-23330

BULB, 70WATT

16

20Y-06-41690

BRACKET

17

01010-81230

BOLT

18

01643-31232

WASHER

19

20Y-06-D1670

CABLE, GROUND

20

01010-81020

BOLT

21

01643-31032

WASHER

Выбрано товаров: 24