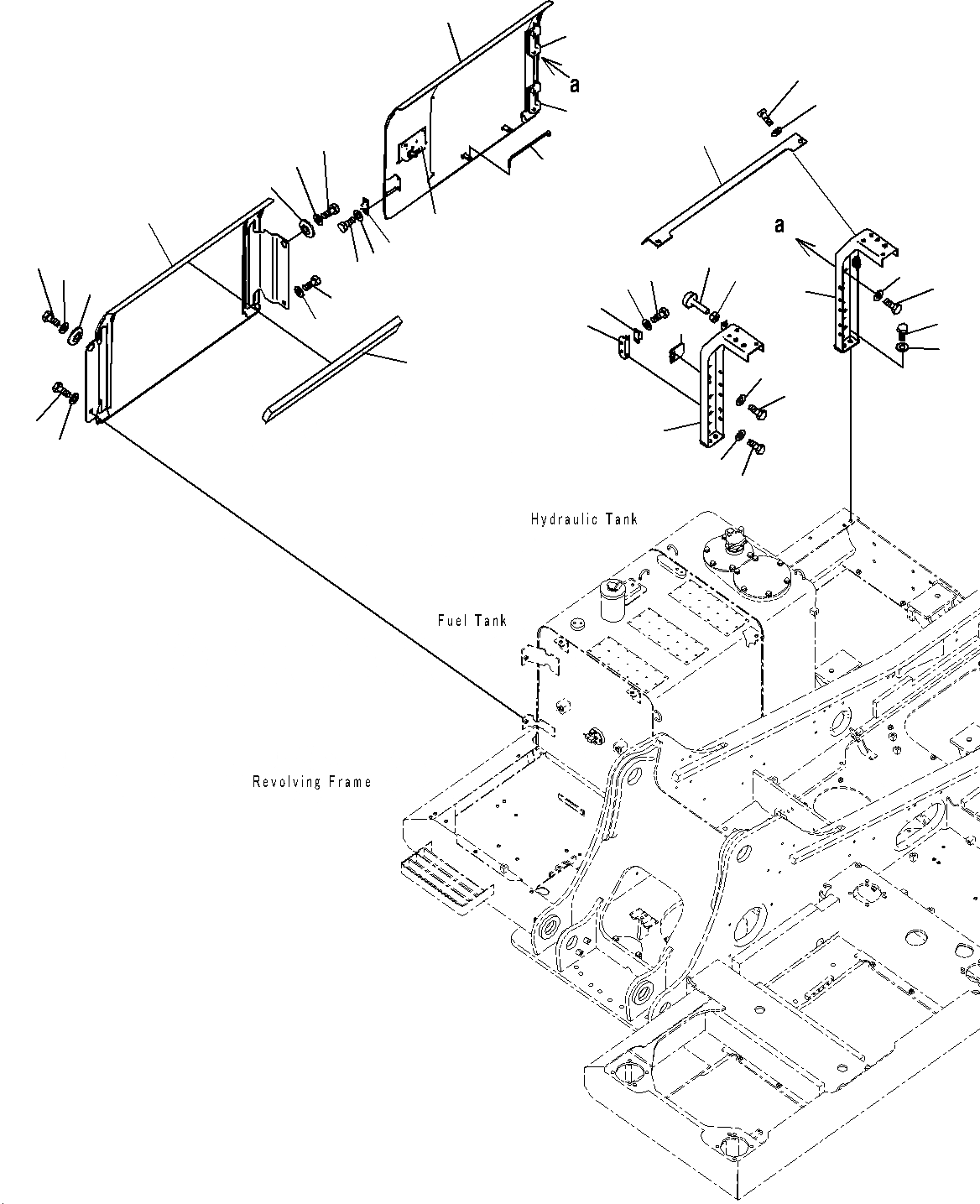
Запчасти Komatsu PC200-8M0 ДВЕРЬ R.H M

Схема запчастей Komatsu PC200-8M0 - ДВЕРЬ R.H M
6
7
8
4
5
7
3
31
32
25
30
28
14
23
31
16
10
21
24
32
15
22
9
30
1
20
31
26
17
11
32
27
29
13
12
2
31
32
19
18
FIT
1:1
100%

Артикул

Название

Примечание

Количество

1

20Y-54-71411

FRAME

2

20Y-54-71421

FRAME

3

20Y-54-71431

PLATE

4

01010-81225

BOLT

5

01643-31232

WASHER

6

20Y-54-71454

COVER

7

20Y-54-63414

HINGE

8

20Y-54-71491

LOCK

9

01010-81225

BOLT

10

01643-31232

WASHER

11

20Y-54-61470

PLATE

12

01010-81225

BOLT

13

01643-31232

WASHER

14

205-54-53550

DOVE TAIL

15

01010-80612

BOLT

16

01643-30623

WASHER

17

20Y-54-28170

BRACKET

18

01010-81225

BOLT

19

01643-31232

WASHER

20

205-54-51971

DOVE TAIL

21

01010-80616

BOLT

22

01643-30623

WASHER

23

20Y-54-11611

STOPPER

24

01580-11008

NUT

25

20Y-54-29232

BAR

26

01010-81230

BOLT

27

01643-31232

WASHER

|$28

20Y-54-71152

COVER

28

COVER

29

20Y-54-61391

SHEET

30

208-54-57180

COLLAR

31

01010-81230

BOLT

32

01643-31232

WASHER

Выбрано товаров: 33