Запчасти Komatsu PC2000-8 НИЖН. КРЫШКА (НАСОС SECTION)(№-) ЧАСТИ КОРПУСА

Схема запчастей Komatsu PC2000-8 - НИЖН. КРЫШКА (НАСОС SECTION)(№-) ЧАСТИ КОРПУСА
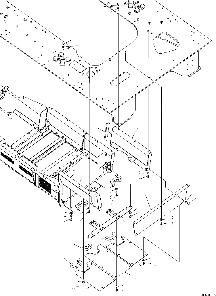
1
2
3
4
5
6
7
8
9
10
11
12
13
14
15
16
17
18
19
20
21
22
22
22
22
22
23
23
23
23
23
24
24
25
25
26
26
FIT
1:1
100%

Артикул

Название

Примечание

Количество

1

21T-54-34911

COVER

2

21T-54-34891

COVER

3

21T-54-39210

SHEET

4

21T-54-34920

COVER

5

01010-81225

BOLT

6

01643-31232

WASHER

7

21T-54-34931

FRAME

8

01010-81225

BOLT

9

175-54-34170

WASHER

10

21T-54-34971

COVER

11

21T-54-39261

SHEET

12

01010-81225

BOLT

13

175-54-34170

WASHER

14

21T-54-34981

COVER

15

21T-54-39261

SHEET

16

01010-81225

BOLT

17

175-54-34170

WASHER

18

21T-54-34991

COVER

19

21T-54-39271

SHEET

20

01010-81225

BOLT

21

175-54-34170

WASHER

22

01010-81235

BOLT

23

01643-31232

WASHER

24

203-54-62670

COLLAR

25

01010-81225

BOLT

26

01643-31232

WASHER

Выбрано товаров: 26