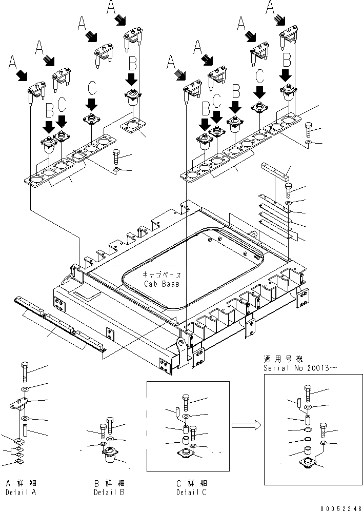
Запчасти Komatsu PC2000-8 КРЕПЛЕНИЕ ОСН. КОНСТРУКЦИИ(№-) КАБИНА ОПЕРАТОРА И СИСТЕМА УПРАВЛЕНИЯ

Схема запчастей Komatsu PC2000-8 - КРЕПЛЕНИЕ ОСН. КОНСТРУКЦИИ(№-) КАБИНА ОПЕРАТОРА И СИСТЕМА УПРАВЛЕНИЯ
1
2
3
4
5
6
6
7
8
9
9
10
10
11
12
13
14
15
15
16
16
17
17
18
18
19
19
20
20
21
21
22
22
23
23
24
25
26
27
27
28
29
30
31
32
33
34
FIT
1:1
100%

Артикул

Название

Примечание

Количество

1

21T-54-36471

CUSHION

2

01010-81230

BOLT

3

01643-31232

WASHER

4

01050-52040

BOLT

5

01643-32060

WASHER

6

21T-54-34172

BRACKET

7

21T-54-34182

BRACKET

8

21T-54-34192

BRACKET

9

01010-82055

BOLT

10

01643-32060

WASHER

11

21T-54-35312

BRACKET

12

21T-54-35582

COLLAR

13

8230-46-1130

BOLT

14

01643-32060

WASHER

15

21T-54-35322

CUSHION

15

21T-54-35321

CUSHION

16

21T-54-35682

BRACKET

16

21T-54-35681

BRACKET

17

01010-81225

BOLT

18

01643-31232

WASHER

19

21T-54-35722

CUSHION

19

21T-54-35721

CUSHION

20

21T-54-35732

PIN

20

21T-54-35731

PIN

21

04020-00514

PIN

22

01050-52040

BOLT

23

01643-32060

WASHER

24

21T-54-37291

PLATE

25

04065-07025

RING

26

21T-54-37990

CUSHION

27

21T-54-37980

BRACKET

28

01010-81030

BOLT

29

01643-31032

WASHER

30

21T-54-36661

PLATE

31

21T-54-36671

PLATE

32

21T-54-36680

PLATE

33

21T-54-36690

PLATE

34

21T-54-35790

SHIM

Выбрано товаров: 38