Качественные детали и логистика
Оригинальные и аналоговые запчасти с доставкой по России, Казахстану и Беларуси
©2022 PartSell ООО "Система" ИНН 2463123282 ОГРН 1212400004838
Центральный офис: г. Красноярск, Академика Киренского, д.87, пом.4
Телефон: 8 (800) 777-65-74 Email: zakaz@partsell.ru
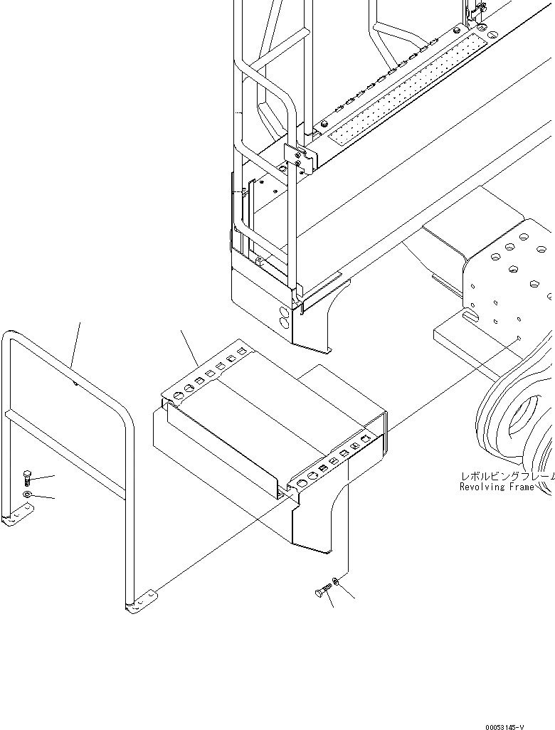
ПРАВ. КРЫШКА(COVER¤ ПРАВ.) (ТОПЛИВН. БАК. ПЕРЕДН.)(№-)
№
Артикул
Название
Примечание
Количество
1
21T-54-33182
FRAME
21T-54-33181
2
01010-81250
BOLT
3
175-54-34170
WASHER
4
21T-54-33191
HAND RAIL
5
6
Выбрано товаров: 0