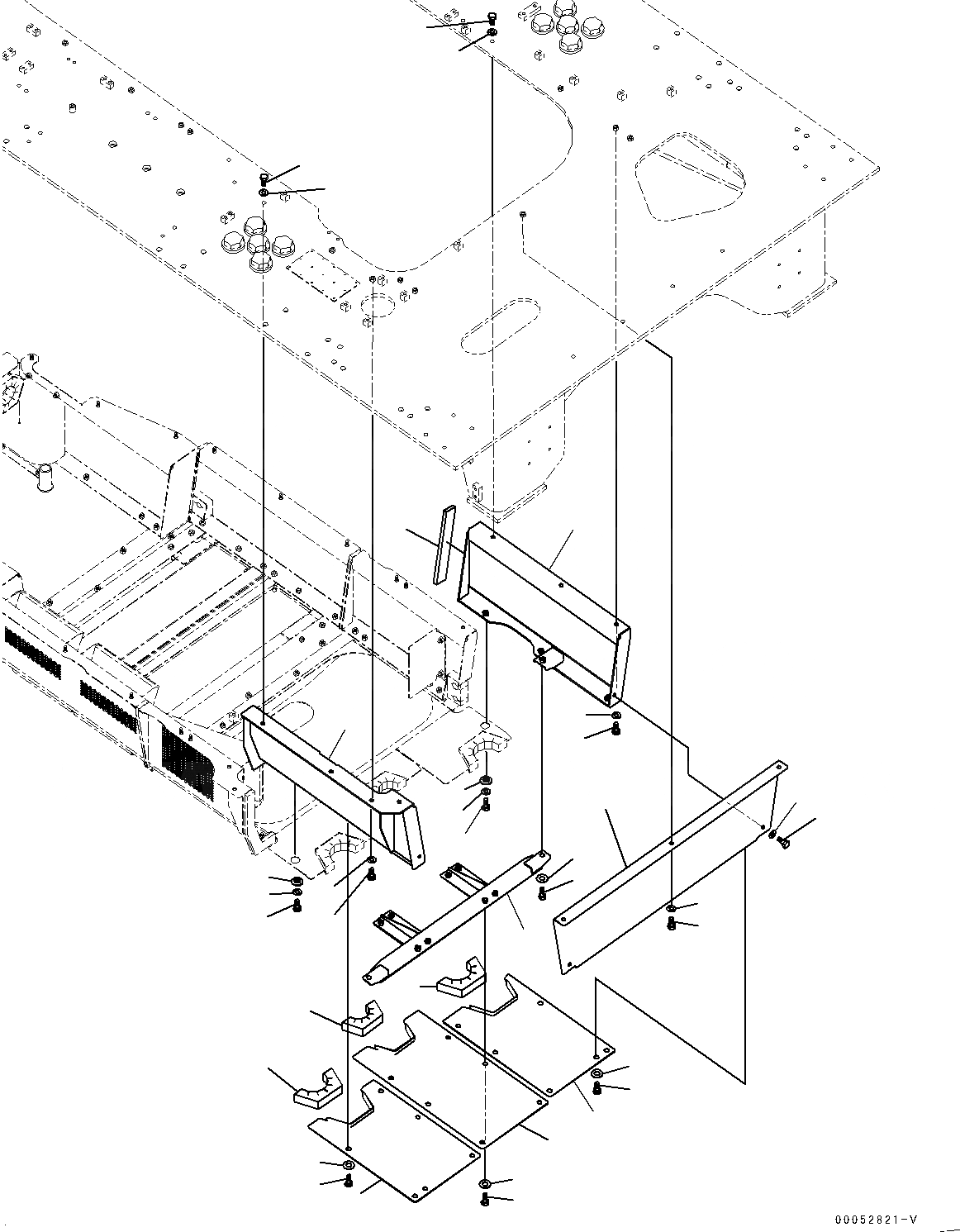
Запчасти Komatsu PC2000-8 НИЖН. КРЫШКА, НАСОС (№9-) НИЖН. КРЫШКА, МОРОЗОУСТОЙЧИВ. СПЕЦИФ-Я A (- THRU DEG C)

Схема запчастей Komatsu PC2000-8 - НИЖН. КРЫШКА, НАСОС (№9-) НИЖН. КРЫШКА, МОРОЗОУСТОЙЧИВ. СПЕЦИФ-Я A (- THRU DEG C)
1
3
2
4
6
5
7
9
8
11
10
13
12
15
14
16
17
19
18
21
20
22
22
22
22
22
23
23
23
23
23
24
24
25
26
26
25
FIT
1:1
100%

Артикул

Название

Примечание

Количество

1

21T-54-34911

Cover

2

21T-54-34891

Cover

3

21T-54-39210

Sheet

4

21T-54-34920

Cover

5

01010-81225

Bolt

6

01643-31232

Washer

7

21T-54-34931

Frame

8

01010-81225

Bolt

9

175-54-34170

Washer

10

21T-54-34971

Cover

11

21T-54-39261

Sheet

12

01010-81225

Bolt

13

175-54-34170

Washer

14

21T-54-34981

Cover

15

21T-54-39261

Sheet

16

01010-81225

Bolt

17

175-54-34170

Washer

18

21T-54-34991

Cover

19

21T-54-39271

Sheet

20

01010-81225

Bolt

21

175-54-34170

Washer

22

01010-81235

Bolt

23

01643-31232

Washer

24

203-54-62670

Collar

25

01010-81225

Bolt

26

01643-31232

Washer

Выбрано товаров: 26