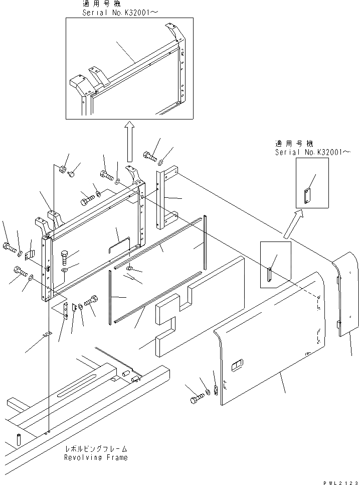
Запчасти Komatsu PC200EN-6K ЛЕВ. ДВЕРЬ (КАБИНА) ЧАСТИ КОРПУСА

Схема запчастей Komatsu PC200EN-6K - ЛЕВ. ДВЕРЬ (КАБИНА) ЧАСТИ КОРПУСА
1
1
2
3
4
5
5
6
7
8
9
10
11
12
13
14
15
16
17
18
19
20
21
22
23
24
25
26
27
28
29
30
31
32
33
33
34
34
FIT
1:1
100%

Артикул

Название

Примечание

Количество

|1

21P-54-K4865

DOOR ASS'Y

|1

21P-54-K5551

DOOR ASS'Y,(FOR FOPS)

|1

21P-54-K4864

DOOR ASS'Y

|1

21P-54-K4863

DOOR ASS'Y

|1

21P-54-K4862

DOOR ASS'Y

|1

21P-54-K4113

DOOR ASS'Y

|1

21P-54-K4111

DOOR ASS'Y

1

21P-54-K4853

FRAME

|1

21P-54-K5540

FRAME,(FOR FOPS)

|1

21P-54-K4852

FRAME

|1

21P-54-K4851

FRAME

|1

21P-54-K4133

FRAME

|1

21P-54-K4131

FRAME

2

21P-54-K5081

COVER

|2

21P-54-K5080

COVER

|2

21P-54-K4120

COVER

|2

198-54-41982

LOCK ASS'Y (WELDED)

3

01010-81225

BOLT

|3

01010-81235

BOLT

4

01643-31232

WASHER

5

20Y-54-28291

PLATE

|5

20Y-54-33290

PLATE

6

205-54-53550

DOVE TAIL

7

01010-80612

BOLT

8

01643-30623

WASHER

9

20Y-54-K8010

BRACKET

|9

20Y-54-33170

BRACKET

10

01010-81225

BOLT

11

01643-31232

WASHER

12

205-54-51970

DOVE TAIL

13

01010-80616

BOLT

14

01643-30623

WASHER

15

20E-54-K2230

BAR

16

01641-21016

WASHER

17

04050-13018

PIN,COTTER

18

203-54-56710

STOPPER

19

01580-11008

NUT

20

21P-54-K4341

FRAME

21

01010-81225

BOLT

22

01643-31232

WASHER

23

207-54-K2420

COVER

24

01010-81235

BOLT

25

01643-31232

WASHER

26

20Y-54-K7421

PLATE

27

01010-81225

BOLT

|27

01010-51225

BOLT

28

01643-31232

WASHER

29

207-54-52690

PLATE

30

01010-81230

BOLT

31

01643-31232

WASHER

32

21P-54-K4381

SHEET

|32

21P-54-K4380

SHEET

33

21P-54-K4410

SEAL

34

20Y-54-K7430

SEAL

Выбрано товаров: 54